金马腾苑-85平的北欧风
2018-09-12 15:38:47 查看人数 803
案例面积:85㎡
案例户型:二居室
装修造价:约12万
案例风格:北欧
金马腾苑两居室的年轻人住宅,风格则是适合小户型的北欧风格。无论是空间的合理利用,还是色调的温馨感都是最佳的选择。
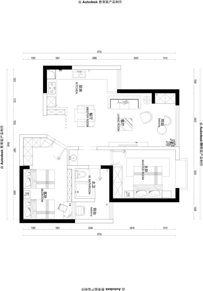
户型图
当原始户型图与改造平面图放置一起时,我们不难看出设计师在整个装修里起到的重要作用。经改造后的平面,功能区域划分明确且合理,细节的处理也符合日常生活习惯。同时,设计师在接触该客户时,考虑到了空间面积的局限性,业主也是年轻群体,建议风格为现代简约或是北欧风格,争取最大化的空间利用。
客厅
茶几和电视柜选择了北欧风里常用的木色,搭配了米灰色的沙发,同时选用撞色和几何形的抱枕进行点缀,整个空间和谐且不会单一,从细节出彰显了时尚感。
餐厅
开放式厨房,除了最大化节省空间外,与客餐厅的风格色调一致性,使得整体视觉感极佳。不难看到厨房的墙砖部门我们采用了北欧风格最为常见的网格原色,同时吊柜也是用了白色的面板,看上去简洁而明亮。
过道
入户就是客餐厅,由于正对了阳台窗户,我们在入户玄关处设置了简单的木质屏风,规避了风水问题的同时也保证了客户隐私性。而定制的柜子,可满足鞋柜、放置柜和储物柜的功能需求。
