上庄家园东区80㎡清新北欧居室
2018-10-24 18:08:18 查看人数 1579
案例面积:80㎡
案例户型:二居室
装修造价:约13万
案例风格:北欧
业主是小两口,将来还会有一个宝宝的家庭,父母时常回来暂住,希望将两居室变为三居,所以这套房子设计中将门厅区域新增一个房间,不仅增加了一个居住空间,还将客厅、门厅、餐厅厨房区域明确,空间更加规整。设计为北欧风格,打造一个白色系温馨的家,在设计上追求功能与形式完美统一,优雅独特,简洁明快。
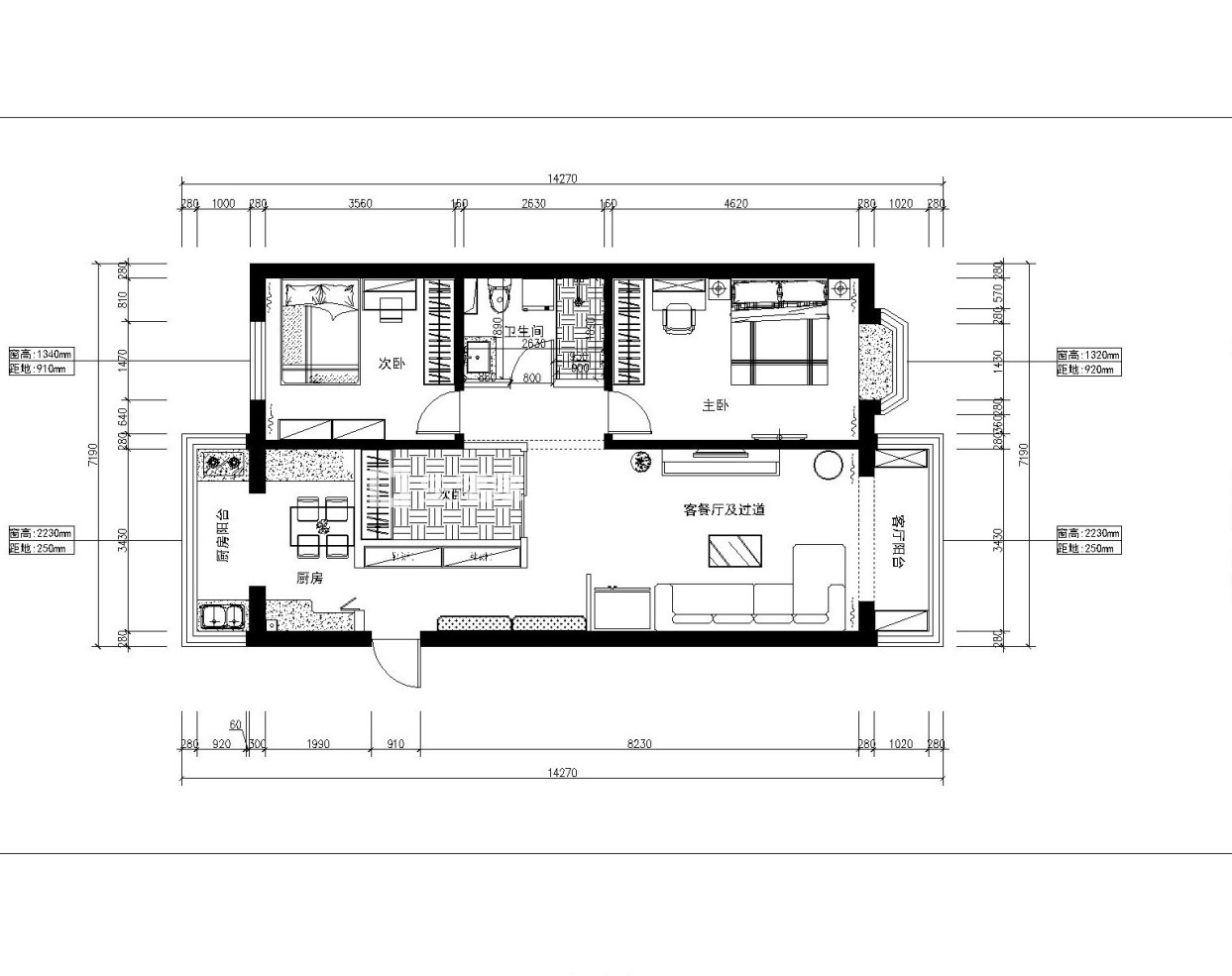
户型图
原户型结构没有太大的问题,但是客厅、门厅、餐厅以及厨房区域分割不明确,形成很大的空旷区域,在功能方面做了细致的规划,主体风格以清新的北欧风格为主,设计增加了一个卧室空间,并使整体空间达到简洁明亮的和谐温暖之感。
客厅
L型沙发配极简风格沙发背景挂画,电视背景墙白色喷涂砖砌形式造型装饰,简约清新的北欧味儿十足,现代北欧感十足的吊灯配北欧现代时尚落地灯,北欧原木纹理配白色三分之一门板电视柜,客厅空间设计得清新自然,给业主舒适感十足的空间享受。
卧室
卧室使用了浅色的原木地板,大面积豆绿色墙体配以白桦林装饰图案床头背景墙,白色叠级吊顶等设计,给人以干净、明快、简洁的感觉,体现出朴实、简单却内涵丰富,达到居住空间的雅致,在满足生活品质的基础上,使空间开出了清新之花。
过道
门厅过道采用了简单屏风做出客厅与门厅的区域分割,视觉简洁大气,里边又加入了原木颜色卡座、嵌入式衣柜等家具和绿植,增加了时尚自然的气息。与客厅整体相互呼应,形成统一空间格调,同时增加了空间延伸性。
