万象新天100㎡实现你的北欧梦!
2018-11-07 19:46:29 查看人数 1668
案例面积:100㎡
案例户型:二居室
装修造价:约30万
案例风格:北欧
每个人都有梦,尤其前几年各综艺话题都上升到中国梦层面,前两天读到一标题“被北欧的高晓松和被癌症的李咏”,挺触动我的,不停向前追逐奔跑的人们,需要静下来闻一闻北欧的风,这里有家人的期待!
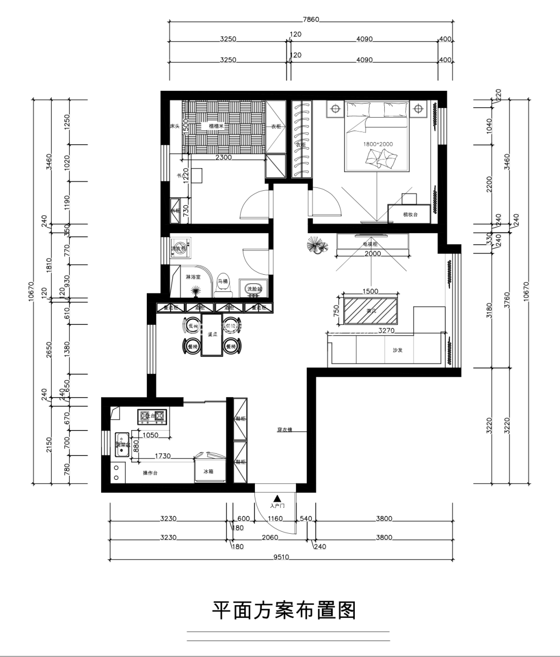
户型图
此户型原结构未做过多拆改,两室两厅分布合理,主入户门进来左手边设置一排衣帽柜,整体厨房开门可见宽敞餐厅,餐厅与客厅侧面过道处相邻,主卧室设置衣帽壁柜,次卧室榻榻米充分满足各种实用功能。
客厅
客厅空间暖灰墙面同暖灰高光地面相呼应,暖灰柔软地毯两边菱形黑白格外留短流苏,标配的北欧沙发与厅柜,米白棉质与本色原木在空间中和谐优雅,北欧客厅充满了舒服的味道。
卧室
主卧室延续了整体空间的暖灰墙面,嵌入式原木本色壁柜、原木本色床体、原木本色柜身米白抽屉门板的床头柜,搭配白色床头吊灯,与卧室现代质感主灯完美和谐的为卧室空间营造出舒适温馨的氛围。
厨房
北欧简约现代整体厨房,灶台下方设置烤箱,洗切炒功能具足设施完备,双开门多功能冰箱充分满足家多种使用需求,暖灰与米白的搭配在厨房空间中进行了整体延展,灰褐色橱柜台面为厨房空间整体增添了一份和谐之美。
餐厅
餐桌设置紧邻通体餐边柜中心处,另一端正对厨房双扇门,通体餐边柜下方灰白柜门板搭配通体本色原木,使覆盖了整面墙的通体餐边柜轻盈起来,餐桌上方三盏吊灯增添了活泼的氛围。
