丽江花园80平北欧风格
2018-12-02 12:18:05 查看人数 828
案例面积:80㎡
案例户型:三居室
装修造价:约13万
案例风格:北欧
小面积的设计考验设计师对整体把控,简洁、直接、功能化且贴近自然,一份宁静的北欧风情,绝非是蛊惑人心的虚华设计。这样的设计既时尚又不会显得太过于高冷,让时尚的体也能拥有一个温馨的小窝。
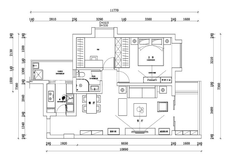
户型图
                                该户型比较方正,客餐厅方正通风采光好,两个房间面积较大,新婚夫妇暂时还没有小孩,其中一个房间则暂时设计成书房,考虑到小孩日后小孩子的居住空间,留了足够空间放一张小朋友的床,整体的设计没有门对门的忌讳,动静分区,居住更为舒适
客厅
                                原客厅面积不是很大,该区域整体的宽度有点紧凑,没有摆太过复杂的家具,一张极简的三人沙发搭配小型圆茶几,改造后整个空间更舒适。北欧中融入时尚的色调,让高冷灰也有自己的温度。
卧室
                                卧室墙体则采用了米黄色衬托整体的温度,百搭的白色作为柜体的色系,简单却又带一点优雅,再搭配一些比较简单的家具,简洁、直接、功能化且贴近自然,顶、墙、地三个面,完全不用纹样和图案装饰,只用线条、色块来区分点缀。
卫生间
                                面积小更能体会到设计的含金量,每一个尺寸把握起来都是要精心策划一番,结合卫生间实际情况及整体的实用性,还是设计出了干湿分区,从而卫生间整体的功能得到了晚上,卫生间是以浅色瓷砖为主,舒适而不花俏。
            
                        
                
            