高邑420平米现代美式
2019-04-05 17:30:30 查看人数 1993
案例面积:420㎡
案例户型:别墅室
装修造价:约68万
案例风格:美式
本方案是一对年轻夫妻及上小学的龙凤胎儿女,幸福的四口之家。男主人每年出差三次美洲,刚拿到房子沟通的时候就确定好风格为现代美式。从测量到一稿方案两周时间,男主没有任何修改,一稿方案通过。设计思路围绕符合现代年轻人审美观的美式做了空间的分区了调整,从色调和格局对实用和时尚做出充分解释
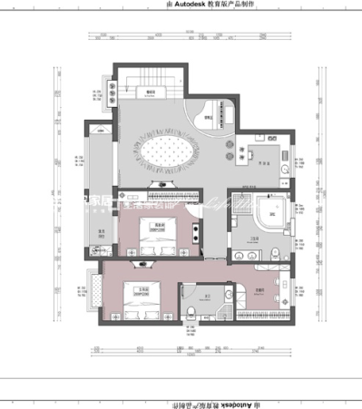
户型图
户型分析:本案原始户型厨房与餐厅为独立空间,餐厅与客厅有一墙相隔。进门第一感觉就是420平米的别墅没有开阔的空间感,在调整方案中将客餐厅隔墙拆除,融为一体后的客餐厅空间开阔,采光度明显提升,以顶面造型配合地面拼花做空间功能区分。一层原为三居室,主卧约15平米,与整体房型比起来略小,且沟通过程中女主迫切需要衣帽间、书房的愿望从原户型不能实现。本案将主卧与次卧有机合并,既满足了主人需求,又将别墅的大视野表现到位。
客厅
客厅整体空间以美式风格的奔放做了最大限度的开间处理,与过道、餐厅合为一体,从视觉上最大化空间感。整体色调以高级灰兰和白色为主,辅以中色家具,增加色调的高级感。家具以及电视墙造型突出现代美式的时尚感,整个空间无形完美的融为一体
卧室
主卧:(主卧为三十多岁的年轻夫妻卧室,基础色以素色,搭配粉色软装,将卧室营选出温馨之感。床头的灰兰色有意与客厅色调呼应,整个空间以此暗线连续)女孩房:(女孩上小学,每个女孩子小时候都有一个公主梦,梦幻般的公主房以温馨的粉色为主色调,搭配以白色床品提升空间纯净美,还小公主一个美美的公主梦)男孩房:(男孩与小公主是龙凤胎兄妹,相比公主粉,男孩房以兰色为主色调,辅以白色相间,体现阳光蓬勃朝气效果)
餐厅
餐厅延续客厅的灰兰突出色,呼应整体效果体现。地面及顶面造型分割使客厅与餐厅既为一体,实又各自分区,背景墙的点晴之笔,使平凡的餐厅美式亮点呈现
