合景领峰57平米loft现代简约
2019-04-09 15:43:50 查看人数 1960
案例面积:57㎡
案例户型:其他室
装修造价:约15万
案例风格:现代
业主是一对未婚夫妇,此房作为婚房使用,平时居住为两人,老人在老家,逢年过节有可能会过来,要满足两个卧室,男业主可能加班情况比较多,所以需要一个独立的书房,女业主需要较多的储物空间,由于年轻人朋友较多,所以需要一个可以娱乐的公共空间。
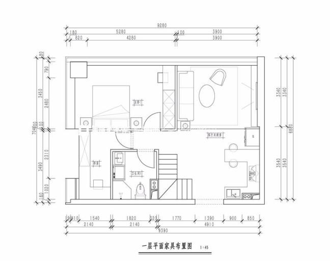
户型图
业主是一对未婚夫妇,此房作为婚房使用,平时居住为两人,老人在老家,逢年过节有可能会过来,要满足两个卧室,男业主可能加班情况比较多,所以需要一个独立的书房,女业主需要较多的储物空间,由于年轻人朋友较多,所以需要一个可以娱乐的公共空间。
客厅
客厅为挑空空间,既可以增加楼上空间的采光效果,又可以在家里来很多朋友的时候让楼上和楼下能有一个交流,由于两位业主做饭较少,同时为了让整个客厅显得更加通透,所以厨房采用开放式,使得空间更加充分的利用,更为合理。
卧室
卧室:卧室空间整个氛围以及色彩搭配偏暖,制造一种温馨的氛围感,在满足储物需求的同时旁边规划出一小处梳妆台兼书桌的多功能区。 二层休闲区:二层休闲区为一个多功能区域,可以招待亲朋好友、娱乐、可以休闲看书、还可以在将来有了孩子后作为一个孩子玩耍或者是客房功能使用。
