广园新村70㎡北欧风格
2019-04-23 14:53:31 查看人数 1495
案例面积:70㎡
案例户型:二居室
装修造价:约12万
案例风格:北欧
本案在设计中由功能的切入化繁为简,不需过多的堆砌与装饰,还原纯粹空间表情,设计这房子时候广州阴雨连续所以想加一个跳跃的色彩,春风拂面,春暖花开,黄色活跃跳动贯彻整个房子,房子就像生活似乎又有了动力。
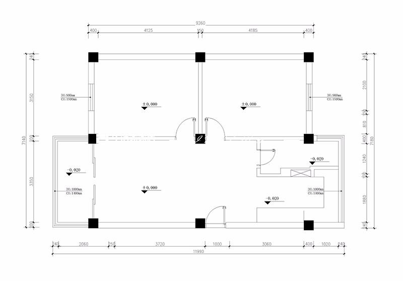
户型图
本案为两室一卫户型,户型方正,全明空间。
客厅
客厅背景是干净素然的大白墙,加上精致的挂画,当你从繁复累赘的都市中转身,迎接你的是一个完全包容和简朴的栖息空间。
卧室
睡眠空间需要安静的氛围,也需要多一些暖人的温度。主卧浅木纹色护墙板的背景墙给搭配深色的衣柜,而空间中黄色让这个沉稳的空间带来一些温柔感。
餐厅
餐厅巧妙利用进房门的通道,柱子边放着几块层板绿植从上往下随意生长着,餐桌既是享受美食也是休闲的地方。
