卡尔生活馆400平米欧式风格
2019-05-08 17:07:26 查看人数 12761
案例面积:400㎡
案例户型:别墅室
装修造价:约88万
案例风格:欧式
欧式风格是西方延续的经典,比较适用于别墅,给人大气和稳重的感觉,置身其中仿佛能感受古老而又神秘的文化气息,让人流连忘返。
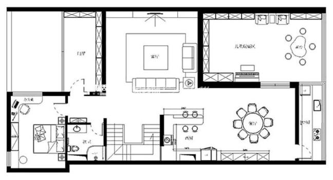
户型图
这是一套3层别墅,根据业主需求,设计师将休闲区、酒吧区、酒窖、影音室设计在地下室;一楼是客厅、餐厅、厨房、客房,并且设计师考虑需要儿童玩乐区,将其设计在采光好的那一侧,将中间墙拆掉扩大其使用面积。二楼以休息娱乐为主,都有独立的休闲娱乐区域。
客厅
客厅是一个欧式偏中式的家具构局,没有是纯欧式的格局但是也不会闲的格格不入,一定的中式元素(家具)会让我们有一种熟悉的感觉,但是又能融合在重色的欧式家具中,米色的环境底色衬托出厚重感,突出了这个环境空间的重量感和主人的个性文化。影音室的设计,满足业主在家观看视频需求,投影布搭配中式设计,营造一种高端、稳重的氛围。同时,在其中还设计了水吧区和酒柜,功能性齐全,丰富空间。在观看的同时,可以小憩,聊天。整个娱乐空间设计合理。对于有品位的业主来说,这里就是天堂。珍藏着各式各种的酒。设计师合理利用空间,既不浪费一丝一毫的空间,又为业主设计一番天地。橱柜整体都是定做,虽然是中式风格,但却不冗余,相反衬托整体空间沉稳、上档次。
餐厅
餐厅中的圆桌是大型空间的不二选择,既能增大使用面积又能美化空间,和方形吊顶形成一个对比,方圆之间又有规则,右边的开放式厨房增强了整个空间的一体感,吧台的设计也能闲的整个空间的装修风格,欧式的浪漫和开放在这个吧台的设计中凸显出来,散光源让整个空间显得很温馨,突出空间功能。
书房
整个空间的色彩以棕红色为主调,红木家具和书柜的结合让人们有一种文化底蕴厚重的感觉,不同于一般的一桌一椅,榻榻米的设计既能储存又能扩大休闲空间,最大化的利用了空间剩余面积,两层设计的窗帘既能保证透光性,又能保证隐私,整个空间色调和谐。
