恒大未来城150平现代轻奢
2019-10-22 16:57:44 查看人数 2187
案例面积:150㎡
案例户型:其他室
装修造价:约25万
案例风格:轻奢
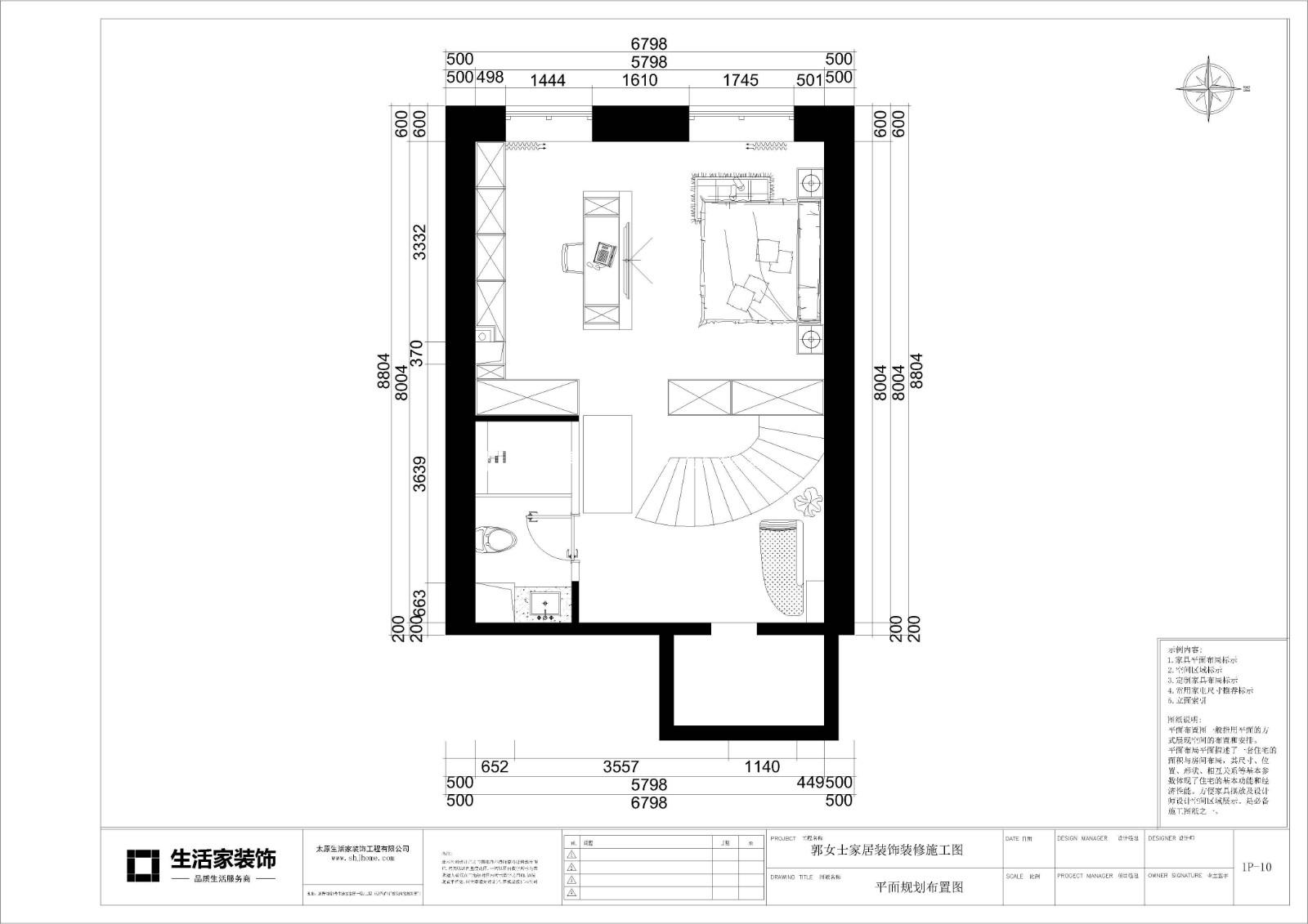
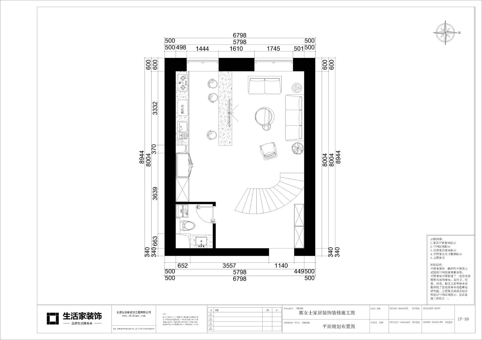
本案设计比较特殊,虽然为复式楼层,并且拥有150平米的使用面积,但是却是一室一厅两卫的设计。客户是年轻小两口住,女主人非常喜欢弧形楼梯。一楼整体设计为客餐厅以及开放式厨房,二楼主要设计为卧室和储物空间,主卫。
户型图
客户是年轻小两口住,女主人非常喜欢弧形楼梯。一楼整体设计为客餐厅以及开放式厨房,还有独立的玄关和客卫。一楼整体采用600*1200的仿岩石纹理的大版砖,造型多搭配钛金和玻璃材质来衬托时尚感。开阔的空间使整个空间采光更明亮充足。二楼主要设计为卧室和储物空间,主卫。地面全采用木地板。
客厅
客厅吊顶以弧形式的长方形为设计,加以钛金作为装饰,奠定了轻奢的整体格调。吊灯采用水滴状,晶莹剔透,样式美观,将精致的生活理念注入其中。电视背景墙与就餐吧台合二为一,以通体白色大理石作为装饰,简洁中透露着高贵。沙发茶几等设计中,主要采用布艺、大理石与金属相结合的手法,将现代轻奢的特点淋漓尽致的彰显出来,也显示出屋主人不凡的生活品味。
卧室
卧室在设计中,最令人瞩目的是中间部分以金属条作为的隔断,在彰显高贵的同时,又十分的气派,得益于宽大的卧室面积,承载得住这样硬度十足的装饰。隔断前半部分,是家中最适合休息的场所,白色背景墙中镶嵌着金属钛金条,优雅又贵气,床头灯也充满着设计感。黑色半透明的衣橱透露出设计的别出心裁,似有似无,若隐若现。隔断后半部分则划分除了梳妆台的位置,既像一个独立的区域,又与整体空间有着丝连。以灰白色为主调打造的封闭式衣柜,占据了一整面墙,给屋主人提供了大量的储物空间,用来放置心爱的衣裳。
