东江欣居85m² 新中式风格
2019-10-25 14:24:22 查看人数 899
案例面积:85㎡
案例户型:三居室
装修造价:约16.5万
案例风格:新中式
整体色调以米色和咖色做为基调,满足温馨的居家需求,软装用冷暖亮色撞色,打破沉闷本案以象征着纯洁与高雅、清净和超然的莲花做为主题元素,用现代简练的语言诠释传统艺术的精髓。通过木线、石材、仿麻料壁纸、金属巧妙的结合,加上整个空间色调柔和、温暖,营造出一种恬静淡雅的荷塘月色的生活氛围。
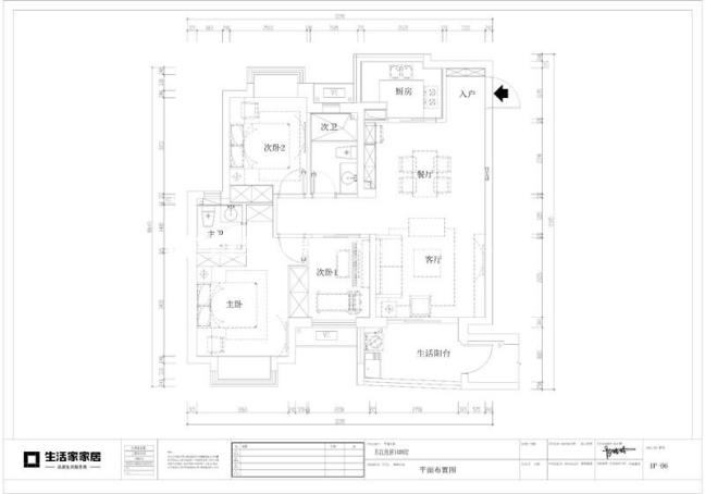
户型图
户型方正,南北通透,客餐厅相对独立,动静区域划分清晰。业主需求:业主热爱琴棋书画,懂得品味生活、崇尚高雅。对艺术和生活都充满无比热情,喜欢中式元素。
客厅
客厅是传统与现代居室风格的碰撞,设计师以现代的装饰手法和家具,结合古典中式的装饰元素,来呈现亦古亦今的空间氛围。中式风格的古色古香与现代风格的简单素雅自然衔接,使生活的实用性和对传统文化的追求同时得到了满足。影视墙的造型简洁现代,却在醒目位置饰以中式书法,这种绝妙的组合给人以强烈的视觉意志力,成为时尚与古典的柔媚结合。
卧室
卧室在色彩方面秉承了传统古典风格的典雅和华贵,但与之不同的是加入了很多现代元素,呈现着时尚的特征。在配饰的选择方面更为简洁,少了许多奢华的装饰,更加流畅地表达出传统文化中的精髓。为了给居室增添几分暖意,饰以精巧的灯具和雅致的挂画,使整个居室在浓浓古韵中渗透了几许现代气息。
餐厅
在色彩方面,餐厅以红色、暗红、白等颜色来营造现代中式的气氛。在餐座椅搭配上,使用了简洁硬朗的直线式家具,不仅可以体现现代人追求简单生活居住要求,也迎合了中式家具讲究的内敛质朴的设计风格,使现代中式风格更加实用,更富有现代感。这些细节上的摆布,将古典中式美注入简洁实用的现代设计中。
