和义西里90㎡新中式两居
2019-11-22 16:36:11 查看人数 1974
案例面积:90㎡
案例户型:二居室
装修造价:约12万
案例风格:新中式
本案为新中式风格,设计师以高雅大气为主题来创造一个舒适优雅的生活空间。新中式风格是以中国传统文化作为背景营造的是极富中国浪漫情调的生活空间,渗透了浓郁的东方之美,它不仅永不过时,而且时间愈久愈散发出迷人的东方魅力。
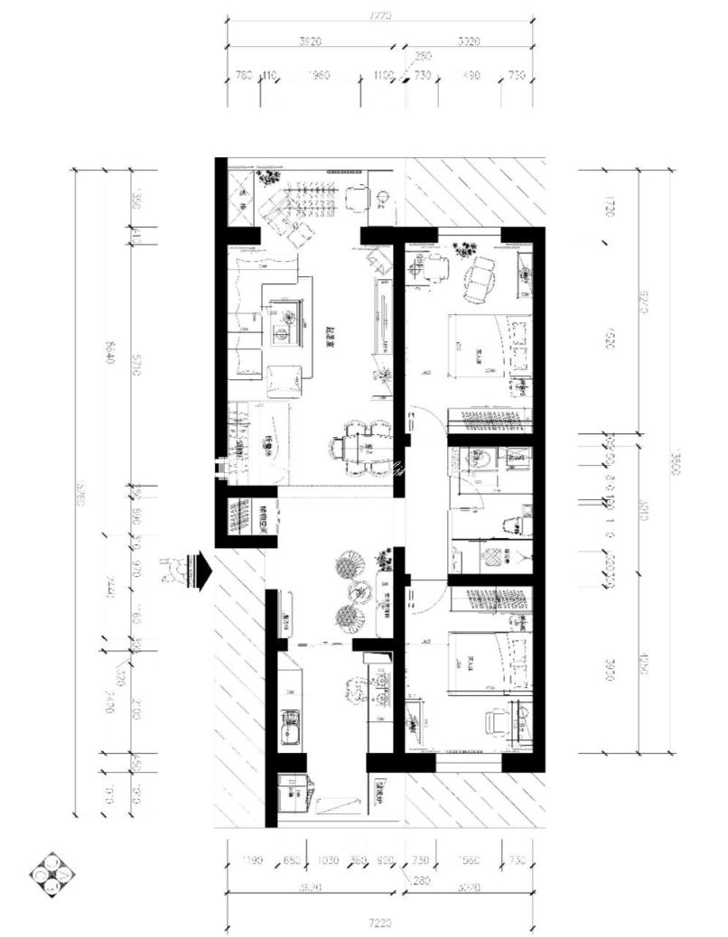
户型图
从户型的整体来讲,此户型的整体格局比较方正,空间比较宽裕,只是从功能分区来讲,空间需做一下调整,使各个空间的优势得到更充分的发挥。
客厅
新中式客厅,无需浓墨重彩,越是“轻描淡写”,往往越有意境。木质中式家具搭配现代白色电视柜,营造出休闲雅致的古典韵味。禅意水墨画作为沙发背景墙,山远水阔的场景,营造诗意十足的意境。加入色泽光滑明亮的缎面抱枕,则有提亮空间,拔高质感的作用。
餐厅
餐厅延续了客厅的新中式格调,营造一种禅意端庄的用餐氛围,再搭配中式画作,吃饭也能写意一些。餐桌上的青花瓷花瓶,中式古韵的餐桌椅布置,背景墙上的诗意圆形装饰画,都使得空间充满气韵优雅的氛围。
