国风上观190㎡北欧风格
2019-12-25 15:00:16 查看人数 3976
案例面积:190㎡
案例户型:四居室
装修造价:约23万
案例风格:北欧
客户喜欢极其简单的生活,看书是最大的乐趣,家里几乎不看电视,书多的可以开图书馆,于是,60平米的客餐厅变成了开放式的书房,格局本身是一个三居的空间,做了很大程度的调整,最终呈现出来的是四居两卫,两个衣帽间大大的满足了女主人的储物空间,客厅的两排书柜,彰显浓郁的文化气息。
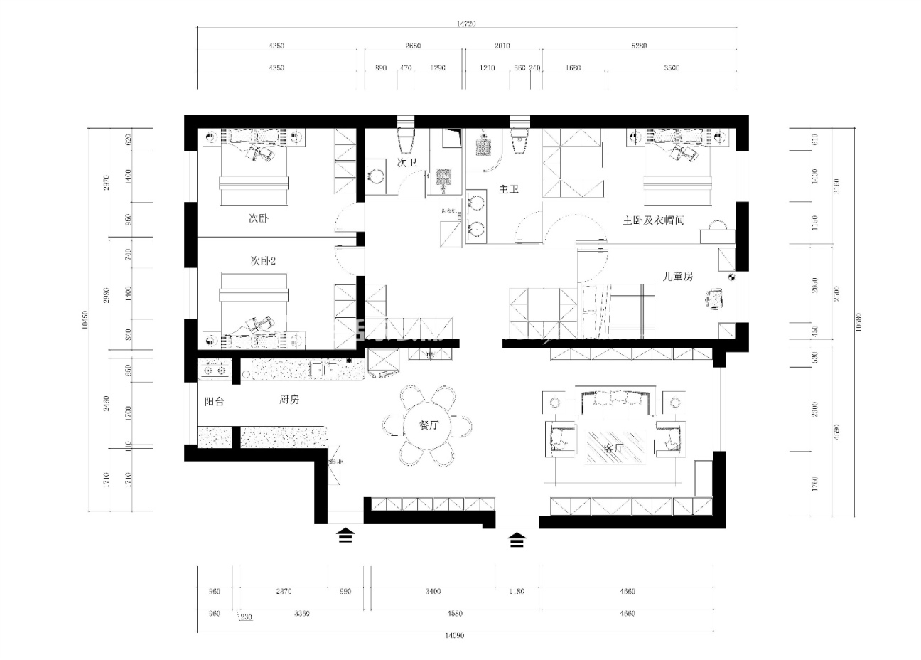
户型图
此户型原本是办公用的三居室,客户想改为四居,且空间不能局促,需要衣帽间,还有很多的储物空间,客厅需要一个开放的书房来读书,结构在一层,需要考虑采光问题,面积特别大,又要考虑色彩不能太浅的问题。
客厅
客户喜欢极其简单的生活,看书是最大的乐趣,在客厅设计两排书柜,彰显浓郁的文化气息。
卧室
主卧为三十岁的年轻夫妻卧室,基础色以素色,体现出简洁大方,将卧室营选出温馨之感。
餐厅
餐厅是特色鲜明的北欧风格,简约大方的餐桌椅衬托出餐厅的温馨与舒适。
