融侨观邸复式152m² 轻奢风格
2019-12-27 19:52:24 查看人数 1603
案例面积:152㎡
案例户型:三居室
装修造价:约50万
案例风格:轻奢
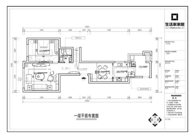
入户处于过道位置,利用边柜跟壁画来缓解孔空间的无趣感,客餐厅一体,厨房位置空间足够大,餐厅位置够大,采取了大圆桌,客厅过道房间门利用了隐形门,增加了美观。二楼空间足够,书房的建立方便了在家工作的便利,使得生活更加舒适。
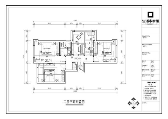
户型图
这个户型是复式户型,但是户型较为狭长,过道浪费空间较大,但是这相对于其他的户型使用空间较多,厨房餐厅位置没有窗户,较为封闭,二楼相对于一楼采光更好,作为休息区域十分的舒适。
客厅
空间较大,爵士白的大理石,搭配上玫瑰金的边线,隐形门的设计使得电视背景墙没有出现断隔,空间更完整,吧台的设置使得空间多出了一分可能,三人座沙发搭配贵妃椅,超级舒适。灯带的设置,使得更有韵味。放弃了大吊灯而使用了吸顶灯让空间更加舒适。
餐厅
餐厅位置空间足够,跟客厅分隔开来,让家人的沟通更加频繁,大理石的墙面造型,让空间有着不一样的韵味,跟壁画形成呼应。别致的吊灯更能让人感受到生活需要仪式感。
