金辉淮安半岛复式100m² 现代风格
2020-01-09 17:32:28 查看人数 1065
案例面积:100㎡
案例户型:三居室
装修造价:约20万
案例风格:现代
现代风格装修空间开敞、内外也很通透。另外室内的墙面、地面以及家具陈设都以简洁的造型、纯洁的质地、精细的工艺为主,从而突出现代风格的简约而不简单。
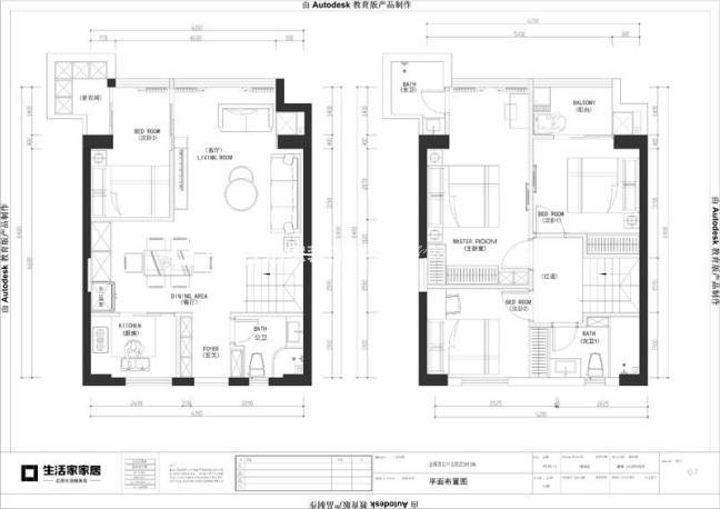
户型图
户型极为方正,空间利用率高。上下层都拥有超大的落地窗,户型南北通透,自然采光条件极好,即使碰到阴天室内光线都不会昏暗,通风透气极佳,视野开阔。休息区与活动区分开,休息区集中在二楼,活动区域在一楼,生活隐私空间不受打扰。
客厅
步入屋内映入眼帘的是洁白素雅的白色大理石电视背景墙搭配上玫瑰金边条,低调优雅而又不失档次。沙发墙用白色与咖色墙板搭配上玫瑰金边条等分圈边,符合视觉上的对称,中间再装饰一幅向日癸,向日葵的花语是“沉默的爱”代表了他们之间美好的爱情。一楼的房间用隐形门最大限度的保证电视墙的完整。
餐厅
入户玄关、餐厅、客厅地板采用黑金花大理石圈边处理,突出每个空间的独立性并且黑白撞色的地面不会显得那么单调。客厅的吊顶做简单的叠级处理,而餐厅采用平吊用玫瑰金边条加以圈边处理。冰箱置于厨房外靠近餐桌方便取放食物。背餐柜用纯白色,餐桌则用黑色,一黑一白,相得益彰。
