江南水都美域132m² 轻奢美式 风格
2020-01-12 17:20:51 查看人数 1053
案例面积:132㎡
案例户型:三居室
装修造价:约25万
案例风格:美式
本案整个空间运用材质堆叠出空间层次,凸显纯粹而宁静的本质。设计师将美观性性与生活习惯结合起来,勾勒出室内丰富的美感,以线面的连贯保持空间的连续,让居住者体会空间的沉稳与舒适
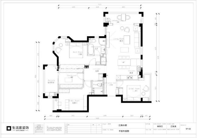
户型图
业主需求,一家三口,需要满足一家人正常居住的功能空间,同时考虑小孩已经开始上学,夫妻两需要一间更衣间,小孩需要父母来帮忙照顾,因此需要准备一间给父母居住,女主人想要有个吧台。
客厅
整个客厅的亮点——电视背景墙,设计师用护墙板与大理石做呈现,还原并强调空间内颜色交织的魅力。采用奢华时尚的造型,平衡着整个空间内的家具造型,同时也平衡着理性的生活方式,满足业主对理想生活体验。沙发背景墙与电视背景墙形成了相呼应的 时尚造型。
餐厅
餐厅考虑到居住人口数量,餐桌选择与吧台连在一起靠墙做,留出充足的过道空间;在餐椅的选用上,我们选用灰色餐桌椅与客厅小沙发同色系;把冰箱设计在餐厅对侧,冰箱上面做吊柜,有效利用闲置空间,也为公共收纳提供了更多的空间。
