金辉悦府 161现代轻奢
2020-03-03 00:05:48 查看人数 969
案例面积:161㎡
案例户型:四居室
装修造价:约23万
案例风格:轻奢
家应达到人与空间最大程度的和谐,并要在和谐中不时来一点起伏;设计是把复杂变成简单,把不合理变成合理,把普通平凡变成伟大,总而言之,室内设计一定要用心去接触,从总体风格到使用功能,反复推敲,反复构思,这样才能打造出一个成功的作品,还必须具备实用,舒适,时尚,美观,环保的家。
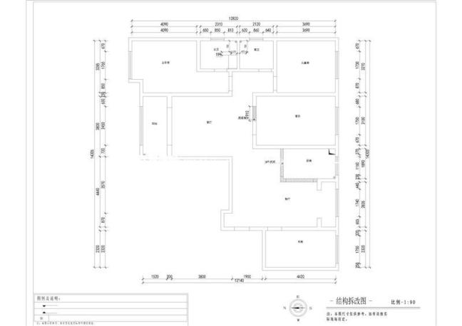
户型图
四房两厅两卫 建筑面积大约:161㎡ 户型各房间设计规范合理。南北通透,客餐厅开间3.8米,黄金进深和开间比例,有利于客餐厅内部的布置。客餐厅都外带有阳台,主次卧朝南,采光较好,门和窗的位置也合理。主卧门正对过道,采用整体全屋定制,床、衣柜、书桌、书柜一应俱全。
客厅
客厅的设计力求沉稳大气,以现代人的审美需求来打造富有传统韵味的细节,彰显出现代轻奢的格调,电视背景采用石材和挂板的结合,电视嵌入式考虑,干净简洁,沙发背景同样采用硬包和石材结合。凸显主墙面的沉稳大气,顶面不锈钢线条点缀处理,配上现代吊灯重新诠释定义了轻奢风格。
卧室
衣柜考虑通顶,顶面石膏板线条处理,原飘窗可以拆除,做储物柜,增加储物空间。以现代人的审美需求来打造富有传统韵味的细节,彰显出现代轻奢的格调。
餐厅
餐厅原有空间没做大的调整,扩大厨房门,增加餐厅酒柜,扩大厨房面积,满足客户对光线的需求,结合原有空间顶面结构做顶面吊顶设计,黑色波导线点缀,酒柜做整体定制,满足储藏需求。整体简洁大方,空间通透敞亮。
