美景良辰 113m² 现代轻奢风格
2020-03-28 14:16:51 查看人数 1137
案例面积:113㎡
案例户型:三居室
装修造价:约30万
案例风格:现代
现代轻奢是现代与古典的融合,强调简单中有奢华感受现代与古典的融合,低调奢华风格强调以现代与古典并重的设计原则,硬装修中强调现代设计手法,通过家具和部分软装来体现古典风格是低调奢华的重要特征。
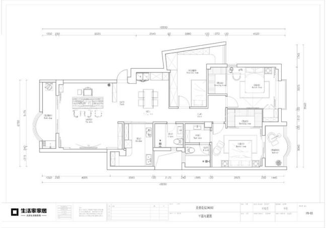
户型图
全南向精致居室,更多阳光呵护。 格局方正,布局合理,功能区域分布清晰。 入户独特玄关柜,充分利用每一寸空间,小细节大品质。 客厅外接超大阳台,和自然零距离接触。 厨房远离厅室,有效保洁。
客厅
在功能方面,客厅是交友娱乐中心,电视背景墙采用大理石中间有玫瑰金线条装饰既大方又有气派,客厅必须在某程度上体现主人的个性,除了顾及用途之外,还要考虑使用者的生活习惯、审美观和文化素养,利用盆栽植物来增添自然气息。
卧室
卧室作为休息放松的重要地点,即使是简单装修也不能够缺少基本的要素。所以在卧室简单设计时我应用了比较舒适的浅蓝色装饰增添了玫瑰金的映衬简单大气它使这间纯净的卧室更富有浪漫的情致。
