三木水岸君山97m² 新中式风格
2020-04-29 09:30:07 查看人数 713
案例面积:97㎡
案例户型:三居室
装修造价:约22万
案例风格:新中式
木色系是回归自然,不忘初心,是大自然的本色,藤萝缠绕,花团锦簇,鸟鸣山幽,层林尽染,带你回归自然,畅快呼吸,享受诗意的栖居。好比树,经过发芽,抽叶,结果,凋谢,如人生一般,叶落之后剩下了叶脉,如人与人之间的关系一样,相互交叉,重叠,经过潮起潮落,留下的是脉,是传承。
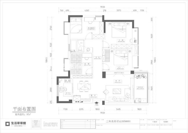
户型图
户型整体结构较好,南北通透利用率高主卧空间较大,光照条件良好。面积利用率高没有多余的边角,客厅及卫生间采光较差通风不足。
客厅
整体空间设计力求简约透露出对自然本真的崇尚与回归环境、光线、氛围 皆让人有禅静如水之感优雅质朴的材质构建了空间的气质。以东方美学观念融入居室设计之中取其神韵、存其风骨、雅静而又不乏时尚让人不禁放慢脚步享受诗意的生活陈设同样有着简约感官的设计纤细轻盈的轮廓和具亲和力的造型构成了奇妙的平衡纯粹的色彩搭配光影的变化婉约别致将现代语言与传统文化得以圆融合一极简之美又注入了东方韵味的意境
餐厅
餐厅作为和客厅贯通的空间利用相协调的深木色酒柜为整墙背景,选择设计嵌入式的冰箱作为点缀。搭配深木色的餐桌台面整体空间呈现素雅而明媚传统而不失现代慢慢生出了整个空间的“魂”让人觉得在此用餐是为乐事。
