凤祥湖滨世纪 87m² 现代轻奢风格
2020-04-29 11:27:54 查看人数 615
案例面积:87㎡
案例户型:三居室
装修造价:约17万
案例风格:轻奢
浅蓝色的墙面温馨又不失时尚,室内空间开敞、内外通透,在空间平面设计中追求不受承重墙限制的自由。简约不等于简单,它是经过深思熟虑后经过创新得出设计和思路的延展,不是简单“堆砌”和平淡的“摆放”。
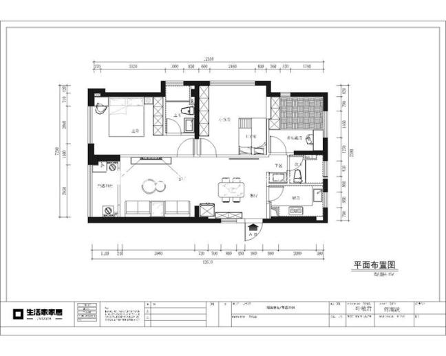
户型图
户型方正采光通风条件良好,面积利用率高,阳台有大面积落地窗视野开阔,每个房间都配备窗户保证了采光和通风条件。
客厅
顶面造型简单时尚,使用了弧角圈边吊顶内藏灯带设计四周搭配筒灯并以水晶吊灯装饰设计感十足浪漫温馨。沙发背景墙采用了浅蓝色色漆外加石膏线圈边电视背景墙延续了全屋的风格搭配贵族银的电视柜质感十足。灰色的抛釉地砖深灰色的沙发外加灰粉窗帘给人一种视觉上的享受。
餐厅
餐厅空间开阔餐边柜设计在了入户旁嵌入式设计使餐厅外观大气用一根梁和半米的墙区分了客餐厅空间上的视觉感。外加圆形吊顶搭配水晶吊灯即足够照明条件又给人一种温馨的感觉。
