永泰•日出东方116m² 现代风格
2020-04-29 11:39:27 查看人数 1166
案例面积:116㎡
案例户型:二居室
装修造价:约22万
案例风格:现代
黑白灰基调下的空间,优雅而内敛。灰粉色的出现打破空间的沉静氛围,带入柔性气质与浪漫气息。原厨房和餐厅空间很小,将厨房解放出来,与客厅连成一体。整合原主卧衣帽间给长辈使用。原书房、主位、卧室规划成大套间,主卫衣帽间相互介入,形成整体,释放出更多功能。一个多功能室,工作、客房、未来小孩房弹性使用。
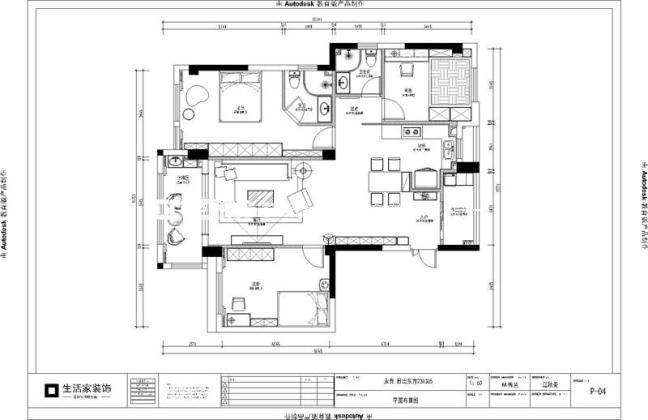
户型图
本套户型于白天所有房间不需要开灯,光照也充足,整体采用自然采光,通风性良;,整体形状方正,整个室内分区方方正正,没有多余边角,偏大面宽,偏小进深,没有暗间.
客厅
客厅的主色调是纯洁的白色,搭配墙壁的灰色和地板的原木色,整体安静舒适。客厅良好的采光性,通透明亮,再配上简单的灯具装点,让温暖照亮每一个夜晚。宽大的沙发柔软舒适,让人不由的想深陷其中,同色系的抱枕点缀其上,与清新自然的原木色的桌椅带来温馨舒适。
餐厅
以白、灰色系为主的客厅,低调而又不张扬,搭配上原木的茶几和边几,让这个客厅不那么单调,鲜明而又活力了起来,客厅与餐厅两个空间并没有分隔,整个空间连为一体,显得极为大气。餐桌与椅子线条简约流畅,椅子铺上柔软的坐垫,软绵的触感让就餐感受倍加舒适。再加上餐桌的一抹绿色的点缀,让住户秀色可餐。
