金建小区110m² 现代风格
2020-04-29 14:06:41 查看人数 1127
案例面积:110㎡
案例户型:三居室
装修造价:约22万
案例风格:现代
本案整个空间运用材质堆叠出空间层次,凸显纯粹而宁静的本质。设计师将美观性性与生活习惯结合起来,勾勒出室内丰富的美感,以线面的连贯保持空间的连续,,让居住者体会空间的沉稳与舒适 。
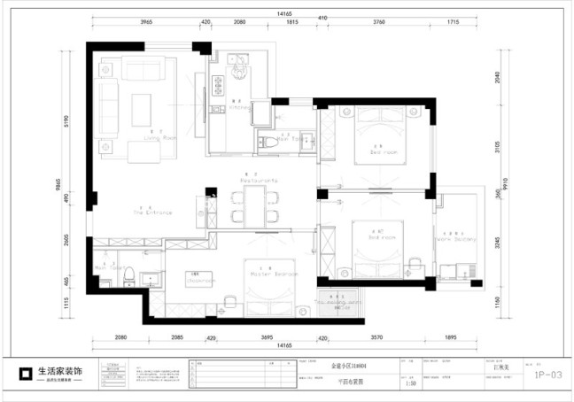
户型图
本案步入门厅半封闭鞋柜,满足正常储物空间的同时没有繁杂的装饰和色彩,简洁大方而又气定神闲,木色色中透出青春与时尚。右侧的换鞋凳让人出门之前可以整理自己的着装仪容,元气满满的出门迎接新的一天。
客厅
客厅的亮点——沙发背景墙,设计师用木饰面做呈现,还原并强调空间内颜色交织的魅力。采用不一样的木饰面板造型,平衡着整个空间内的家具造型,同时也平衡着理性的生活方式,满足感性、大胆、创新的生活体验。沙发背景墙与木纹形成了独有的成熟内敛气质。
