首开融侨尚东区91m² 现代简约风格
2020-05-22 14:29:22 查看人数 1051
案例面积:91㎡
案例户型:三居室
装修造价:约20万
案例风格:现代
整个空间以白色基础色调,用灰色元素来增加空间的时尚感,冷静之中的活跃。电视墙用石膏线条做装饰,沙发墙均用灰色做装饰,简约又不失时尚。顶上石膏板用筒灯点缀,空间感划分清晰再配上方形组合的艺术吊灯。
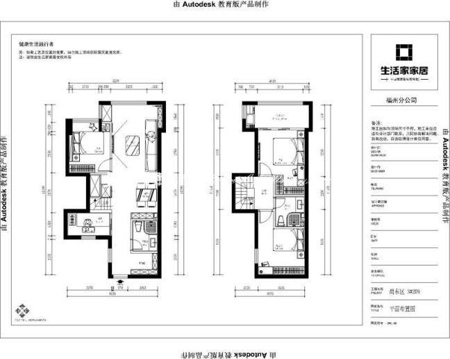
户型图
房子的整体采光都很好,户型较为方正。我们也尽量的保留大部分的格局不变,让自然光线可以撒满整个屋子。面积利用率较高,每个空间都有单独的窗户南北通透。
客厅
客厅延续着餐厅的整体色调。所有的家具设计精简,线条感十足。黑色的皮质沙发与地毯相互呼应,衬托出了空间的美感和质感。电视墙采用石膏线条圈边更显高级。
餐厅
餐厅用白色的餐桌与整个空间相呼应,餐椅则用棕灰色色来点缀,色彩上的搭配体现了设计师的设计水平,餐厅的灯光很重要既不能太强又不能太弱,所以设计中灯光则以温馨和暖的黄色为基调,顶部和客厅一体的吊顶。
