世茂上游墅255m² 别墅 新中式风格
2020-05-24 16:16:07 查看人数 1589
案例面积:255㎡
案例户型:别墅室
装修造价:约75万
案例风格:新中式
全屋以新的中式为主体,略带沧桑质感的灰色木地板的地面与浅色调的墙面有着鲜明的对比,让传统艺术在当今社会得到合适的体现,表达对清雅含蓄的东方式的追求,家居结合了现代风和中式风,即满足了现代人对于中国传统文化的精神追求,又能体现出现代人对于中国文化的现代感理解。
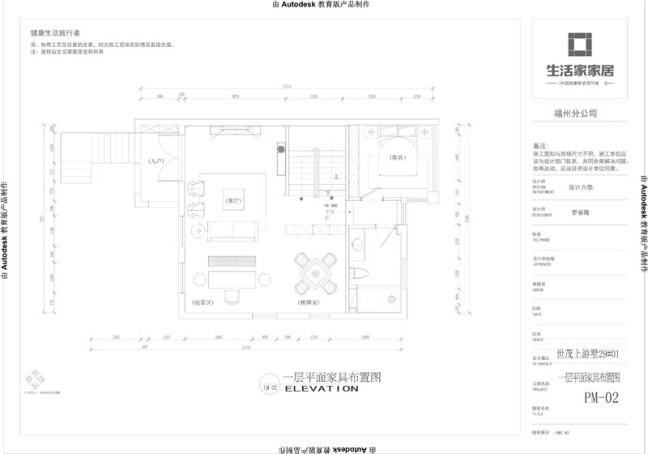
户型图
户型较为方正,柱子较少,空间内的承重墙较少分布比较平均,空间利用率较大,房屋四面都有窗户,采光与通风好,景观佳,保证每个家庭成员都能直接享受充足的阳光和日照,即使在晴朗的白天,有时也不需要开灯,整体户型可塑性强。
客厅
浅灰色瓷砖为客厅进行铺设,色泽清雅美观。简易的地毯为全屋增添了一分简洁的现代美,让整个空间更显精致。客厅以富有现代和复古的桌椅,使得整体感觉明快透亮增添了一份柔美,实木型的家具以及中国特色的门窗,给人一种悠远,宁静的文化韵味,除了保留中式的韵味外,还加了大理石、灯带等现代材料与浅色调的背景墙与木饰面造型和谐的衔接到了一起,使其有了一种清爽洁净与精致感并存的独特韵味。
卧室
房间的整体风格都比较简约,卧室也不例外。在色彩方面秉承了传统古典风格的典雅和华贵,但与之不同的是加入了很多现代元素,呈现着时尚的特征。在配饰的选择方面更为简洁,少了许多奢华的装饰,更加流畅地表达出传统文化中的精髓。为了给居室增添几分暖意,饰以精巧的灯具和雅致的挂画,使整个居室在浓浓古韵中渗透了几许现代气息。卧室家具运用了简朴的家具,在吊顶方面运用了简单的装饰木线贯穿始终在配以暖色系人造灯营造出典雅舒适的视觉感受,在卧室内还使用中式的屏风,通过这种新的分隔方式,就展现出中式家居的层次之美。再以一些简约的造型为基础,添加了中式元素,使整体空间感觉更加丰富,大而不空、厚而不重,有格调又不显压抑。
餐厅
木质的布艺座椅,浅色大理石的餐桌体现了中国传统的简素美,不采用过多的装饰技巧展现出淡雅的文化气质,加上柔美的家居,雅致的配饰,赋予了餐厅的素净,明亮的神采更能体现简单素雅的感觉,中式木质的展示柜在增大储物空间的同时也可以展示一些中式古典的装饰物,体现出高品质的家居生活,使得新中式风格更加灵动。
