恒大御龙湾118平欧式
2020-06-08 17:45:57 查看人数 574
案例面积:118㎡
案例户型:三居室
装修造价:约15万
案例风格:欧式
在欧式风格中,华丽的装饰和造型是必不可少的,石膏线,罗马柱,墙面装饰及吊顶等都能起到举足轻重的作用。欧式风格还讲究空间的对称性,以石膏线为例,花型精美并呈现几何对称排列,是空间中一道亮丽的风景线。石膏有一种独特的美,被赋予建筑形态时拥有雕塑般的力量感。
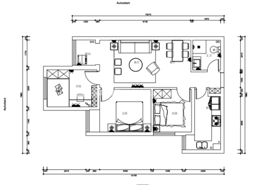
户型图
该原始户型为三室二厅一厨一卫的平层,户型南北通透,整个房型区域比较规整,动线合理,采光很好。
客厅
相较于重工复杂的古典欧式而言,本案子强调欧式风格功能和装饰性。因而更符合成熟的业主夫妇的个性审美和追求。无论在色彩装饰上,还是家具材质机理上,都给业主提供了在纷扰工作后找到一种宜居的平稳性。既能强烈的感受到欧洲文化丰富的艺术底蕴,又能体验到现代生活的简单和舒适。
卧室
欧式装饰风格主要突出典雅、美丽、精致的特点。无论线条,边缘的变化都叫丰富。家具、装饰品、布艺窗帘等都具有文艺特色欧式风格,给业主营造了豪华典雅的美感。休憩空间的美学品质同时体现了客户的审美。
餐厅
暖白色和灰蓝色为基调的背景色搭配时尚的黄铜质感的金属线条,让整个空间温馨时尚。提到欧式装修,很多人想到的都是繁复的装饰元素、光亮镀金的土豪般的即视感。本案子空间非常干净、纯粹用现代的方式给业主营造了温暖的欧式。
次卧
次卧是女儿房,女儿已经上大学。整个空间以清新淡雅为主,暖米色的墙布+亮白色墙板作为床头背景,搭配头层皮的厚靠包的软包床,给孩子营造了温馨舒适。纱质的床幔给整个空间增加了柔美质感,这也体现孩子再大在家人心里都是孩子这样的老话。
