石油大学110平现代北欧
2020-06-09 12:50:50 查看人数 567
案例面积:110㎡
案例户型:三居室
装修造价:约10万
案例风格:北欧
北欧风格家居设计,简洁、干练,让家中呈现一种自认的舒适、干净之美。白色墙面,餐桌椅就像那故意做旧处理的木质长桌,一股浓浓的北欧范,配着绿色的植物更显明朗与温馨。原木色的餐桌搭配,现代与自然元素相结合,温暖的色调一致搭配。让整个餐厅温暖起来。
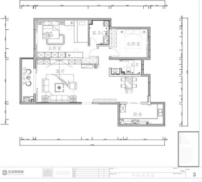
户型图
该原始户型为两室二厅一厨两卫的平层,可以说是南北通透,整个房型区域比较规整,但是在设计上将主卧室与儿童房设计一起,让小孩子也有个安全感。整体采光非常好,没有浪费的空间,业主希望在设计时满足风格要求,但又不显得传统。
客厅
在整个客厅区域,根据客户的要求去整体利用软装上面的颜色来呈现整体空间的感觉。客厅沙发背景考虑的是墨绿色的颜色,让北欧家具这种原木色与墙面整体突出,进入客厅有种很亮眼的感觉。在沙发以及窗帘上面选择了浅灰色系的棉麻质感的产品,这样在坐感和感官上有了一个温馨舒适的感觉。
卧室
整个房子业主希望将设计成自然生态的的感觉,在讨论中将卧室背景墙面运用了大自然的壁画来体现回归自然。整个房间以大面积的原木色家具作为主色,选择草绿色作为辅助色,让其房间温馨而舒适,像有种自然的感觉。
次卧
设计根据小孩的天性来做整体的搭配布置。小孩是个2岁女孩子,业主想给孩子一个温馨而又充满童真的房间,并且带有女孩的天性,所以大面积以粉色为主色调。整体家具也是选择原木色和布艺结合的家具,每当温暖的阳光穿梭着微隙的气息,舒倘,弥漫,把天地间一切空虚盈满。纤绝的尘陌,呢喃的天真,童趣休闲是关键。
