融侨悦城70m² 北欧风格
2020-06-28 12:00:18 查看人数 861
案例面积:70㎡
案例户型:二居室
装修造价:约15.5万
案例风格:北欧
本套方案设计师采用现代北欧的装修风格,客厅沙发背景和餐厅融汇贯通,使空间的整体性更加突出,选材颜色素雅大方,设计师将温馨的氛围很好的融入北欧风格中,如今都市生活节奏快,工作压力大,不想再为生活所累,希望在家中彻底放松身心,享受生活,那这种素雅柔和的色调是不错的选择。
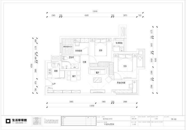
户型图
本案户型原结构是平层,虽然套内面积只有70平,但是空间的利用率很高,使得整体布局起来可以充分满足业主的需求。唯一美中不足的地方在于厨房面积过小。该户型南北通透,通风采光都极佳。最后出来的整体空间效果很清爽通透,空间动静线也变得更为人性化和合理化。
客厅
客厅与主卧的隔墙采用45度墙使得整个客厅空间视觉效果上放大是整个客厅空间的设计亮点。围绕整个客厅空间一圈的白色护墙板造型更是使得整个客厅墙面造型前呼后应,使得空间显得更加一体化。吊顶上简单的叠级造型让空间更加充满层次感。宝石绿的布艺沙发让空间更加简洁、大气。
餐厅
客厅的墙板一直延伸到了餐厅墙面,连同色系一起,使得客厅空间和餐厅空间连为一体。橱柜选用白色的哑光面白色面板,让空间显得干净硬朗。整体橡木的纯实木餐桌,纯橡木色的实木餐椅,让餐厅空间显得更加拥有质感。
