世茂上游墅230m² 现代简约风格
2020-07-28 17:26:58 查看人数 1701
案例面积:230㎡
案例户型:其他室
装修造价:约40万
案例风格:现代
公寓是一个空间,而家是一段时光。设计尝试将温暖倾注于这个容器,将一路欢然妥帖收藏,自由放松的生活由此铺陈开来,做自己喜欢的事,营造自己想要的幸福,将细碎的时间编织成明媚的阳光。设计的初衷在于贴近本质,反对过度设计,避免追求过于华丽的形式与无谓的浪费,使居者作为空间的主角,拥有感知自在的环境体验,为生活留有余地。
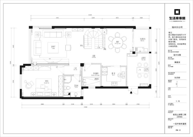
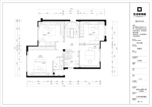
户型图
此案户型可以说是比较理想的,南北通透、采光良好,是非常舒适的居家条件。本案屋主对于生活的要求有着独特的品味,客餐厅相连通透、大气,所以在设计方案中,并没有设立玄关区,让空间尽量彰显视野的开阔。
客厅
客厅作为家庭生活活动区域之一,它既是全家活动、娱乐、休闲、团聚、就餐等活动场所,又是接待客人对外联系交往的社会活动空间,是家居生活的核心区域,又是接待客人的社交场所,是住宅空间的中心首脑和对外的一个窗口。
