中庚•香汇融江98m² 现代轻奢风格
2020-07-30 14:08:03 查看人数 1473
案例面积:98㎡
案例户型:三居室
装修造价:约21万
案例风格:现代
现代简约并不是大量的留白,不是简单的家具摆放,而是经过仔细推敲后的创新思路。在满足业主的基本要求的同时如何通过专业的手法赋予空间新的、不一样的生命,我想这是设计的根源。然而希望每个空间独立的同时又形成一个完美的整体这也许是我在思考这个方案的首要出发点。
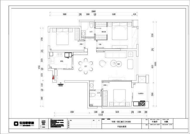
户型图
原户型客厅、厨房的飘窗占用了使用面积,显得空间不够大,在敲除了之后,可以增大使用面积。把生活阳台的空调机位用来做储物柜,在不影响空间的使用同时,又增加了储物空间。
客厅
客厅电视背景墙采用香槟金线条,显得时尚而又大气。沙发背景墙使用挂画与灯带,让背景墙不在显得单调,在加以绿植点缀,让整个空间看起来有生机,身心得到很大的放松。
卧室
主卧的墙面和吊顶延续客厅的形式,使得整体空间得到统一,而不会显得杂乱。衣帽间采用开放式的门套做法,让主卧显得更加宽敞和大气。
