霸州孔雀城130㎡北欧
2020-08-28 13:49:20 查看人数 6147
案例面积:130㎡
案例户型:四居室
装修造价:约21万
案例风格:北欧
客户为来北京退休干部,为第二居所,客户要求一种舒适安逸的简约生活,享受阳光,享受品质,风格为北欧。
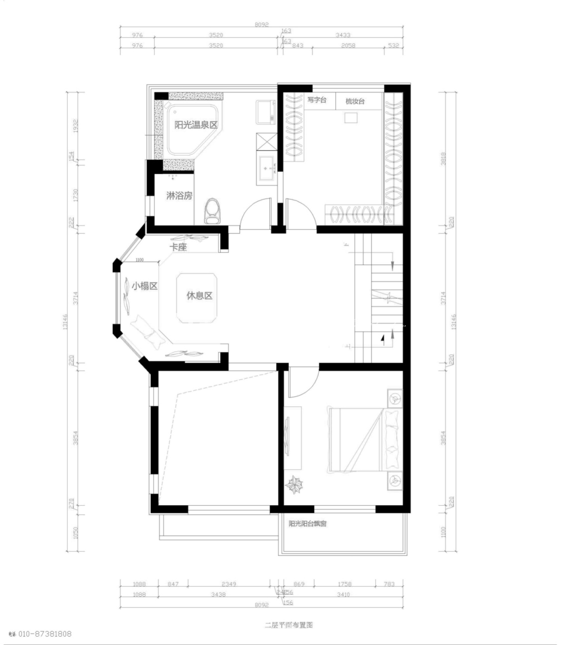
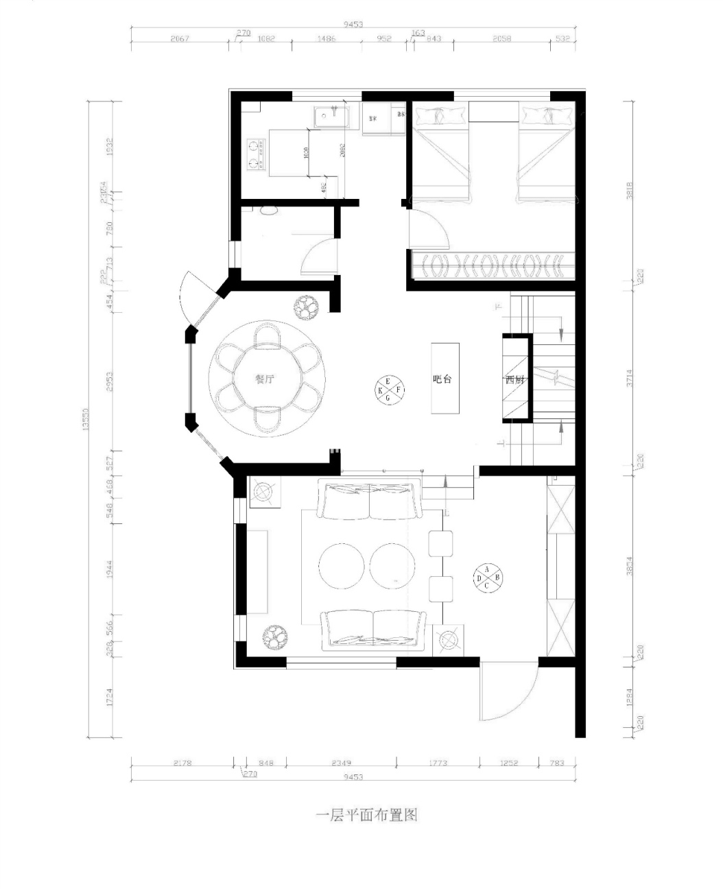
户型图
客户为来北京退休干部,为第二居所,客户要求一种舒适安逸的简约生活,享受阳光,享受品质,风格为北欧。
客厅
白色为主,拆掉客厅与餐厅之间的轻体墙,将空间尽量做大,将光线引入室内。
卧室
卧室由于原始顶面的结构,顺势而为,人字木梁,打造安逸自然的舒适空间。
餐厅
六角餐厅配合原木木梁结构,打造舒适安逸的就餐空间。
书房
卡座空间设计,将女主人的生活方式引入其中,下午茶,阳光,阅读空间。
