东外公馆50㎡现代
2020-09-15 14:28:34 查看人数 3273
案例面积:50㎡
案例户型:二居室
装修造价:约10万
案例风格:现代
这间公寓整体采用现代风格,简约的家具与配饰,而内在储物空间十足。这间公寓由一个开阔的客厅,一个开放式餐厨区域,一间卧室和两个浴室组成,是为一位年轻商人设计的。合理规划了布局,并创建了一个实用且时尚的空间。
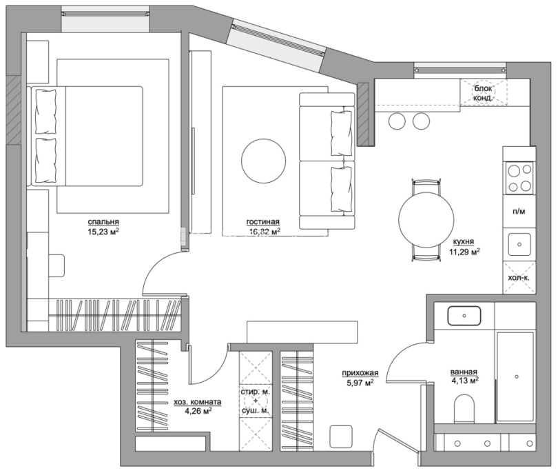
户型图
这间公寓整体采用现代风格,简约的家具与配饰,而内在储物空间十足。合理规划了布局,并创建了一个实用且时尚的空间。
客厅
沙发后方墙面整面白色护墙板简约雅致,这面墙上隐藏了客卫门、卧室门和储物柜门,将隐形进行到底!
餐厅
餐厅厨房融为一体,并没有让厨房完全开放,而用一个木制的立方体来强调它,如果四处走动,你会看到他其实是带大量内置收纳空间的储物柜。
