离石中央公园轻奢风格230
2020-10-28 17:17:57 查看人数 1531
案例面积:230㎡
案例户型:别墅室
装修造价:约30万
案例风格:轻奢
简约而不简单,创意的在艺术表达形式中承载着业主的诉求,是张老师在本次设计案例中的亮点,少许的现代元素点缀出生活的精致,于细腻简洁中设计出简约质感的生活家居。
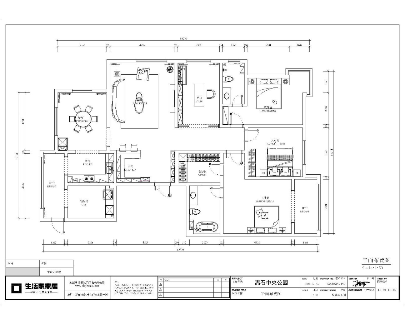
户型图
格局在设计师的设计下,显得都很大方,设计师的设计也是看似简洁素净的外表之下融入时尚轻奢的特质,展示着精致优雅的生活态度。
客厅
设计师非常注重居室空间的布局与使用功能的完美结合。本案以简约的空间与华丽端庄的软装与颜色搭配为主,注重高品质与设计感。
卧室
本案设计师主要运用现代元素,通过家具和部分软装来体现轻奢效果,将优雅时尚的质感结合现代材质及装饰技巧,巧妙地呈现在居室中,给业主营造出一种独特优雅的档次感。
餐厅
设计师的设计简洁素净的外表之下融入时尚轻奢的特质,展示着精致优雅的生活态度,不需要走在前端,更不需要炫耀夸赞,低调,舒适,却无损高贵与雅致,尽情享受生活的美好。
