雅园120平米现代风格
2020-11-30 10:30:56 查看人数 1672
案例面积:120㎡
案例户型:三居室
装修造价:约13万
案例风格:现代
优雅与时尚并存,奢华而不浓重,精致而不浮夸,身处繁华的现代都市生活,偶尔也要慢下来,拥抱此刻的温馨和美好
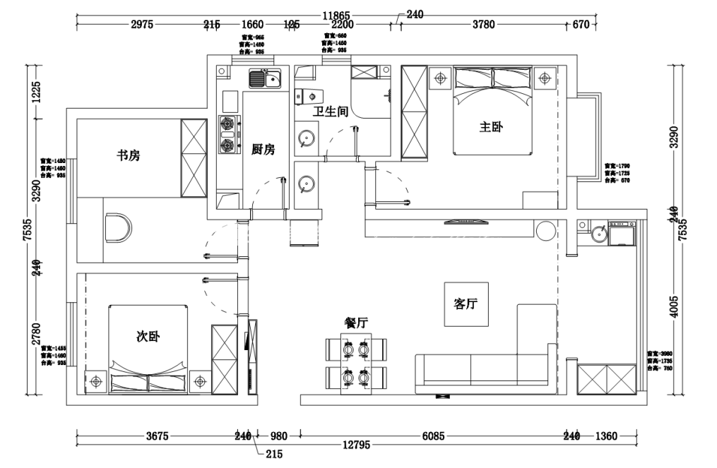
户型图
客厅
客厅空间使用清新淡雅的米白色硬包,天花和墙面点缀香槟金不锈钢线条,营造现代感的美学风尚,地面铺设咖色大理石,简约纯净的纹理之间凸显出一种高级气质,和电视背景墙的灰白色大理石交相呼应,使得客厅空间氛围静谧而内敛。
卧室
儿童房运用轻松、愉悦的色彩和空间搭配,不仅能刺激孩子充满活力,也能激发他的想象力,即使一个人睡觉也不会感到孤单和恐惧。个性的儿童床,可爱的抱枕、摆件等软装的摆设,还可以培养孩子的“艺术天赋”
