三盛国际公园香缇时光-134m² -现代简约风格
2020-12-19 15:47:23 查看人数 942
案例面积:134㎡
案例户型:四居室
装修造价:约35万
案例风格:现代
简单的设计比繁复的画面,往往更能打动人心。全屋主要以白色为主,灰色及深色为辅的格调来呈现;全屋大多数以线条的形式为整个空间进行装饰,沙发背景和电视背景的线条呼应,使之两边背景相碰撞且非常和谐。在电视的两边采用不锈钢来装饰陈设柜,让整个空间不失平衡且美观大方;
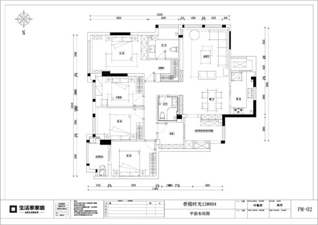
户型图
户型结构合理,南北通透、整体的外部轮廓线呈正方形,每个功能区的户型也很方正; 客餐厅连为一体全明设计,通透采光极好,功能更加齐全;动静分离、会客与休息区清晰 区分,互不干扰;
客厅
整个空间以白色调为主,灰色与深色为辅,灰色调的大地砖与白色调的墙面和深色的柜体相呼应,沙发背景墙采用亚克力线条墙板及灯带来装饰,这样就不会显得单调,电视背景墙采用大理石壁炉和石膏线条及不锈钢柜体来装饰,这样彰显出电视背景高端大气。精美大气浅色布艺沙发使整个空间的格调一下就压制下来了,使之平衡,沙发的用处很多分别可以休闲娱乐,看书等,通过全落地窗折射进来的阳光为全屋增加了一股独特的温暖。
卧室
整体空间采用了白色为主,深灰色为辅的格调,再加上深灰色的窗帘,走进卧室那刻起,就感觉得到了很好的放松;卧室背景墙采用石膏线条来装饰,从而让其背景墙不再单调,此空间整体颜色为浅色及白色,柜体采用深色不锈钢与之相呼应,让其有重有轻,有深有浅,有粗有细,让人体会到不一样的美。
餐厅
餐厅与客厅相连,大气的不锈钢与大理石相搭配的餐桌及其精致的餐具,以及浅色地砖及白色亚克力线条墙板相呼应,让整个空间呈现处不一样的美。黑白灰的搭配再加上艺术吊灯给整个餐厅带来一缕温馨感。大长桌餐桌的设置,再加上不锈钢酒柜的设计,使之提升了空间的尊享感及设计感。
