西松树胡同180㎡后现代风格
2020-12-24 14:31:48 查看人数 2909
案例面积:180㎡
案例户型:二居室
装修造价:约20万
案例风格:北欧
客户为六旬花甲之年,之前在台湾生活十年之久。近两年后回国,要长居大陆。家中母亲有一老宅四合院,客户想把四合院翻新重装一下,和家人一起度过母亲的晚年时光。
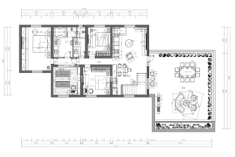
户型图
此户型没有大的改动,老房砖混结构,大的改动会让造价大幅度上升。在原有的户型基础上,做细微调整,控制预算,满足功能。
客厅
设计并不在于拆了多少墙体,改了多少墙体。设计更注重是否能满足客户的需求,解决客户的问题。
卧室
原户型有段走廊空间浪费,直接纳入卫生间使用,两个卫生间使用更加舒适。
