流星花园小区96㎡北欧
2020-12-25 15:39:20 查看人数 2823
案例面积:96㎡
案例户型:二居室
装修造价:约15万
案例风格:北欧
此房为业主一家三口人居住,比较喜欢传统文化,这套房子的设计风格定位为北欧风格,阳台和客厅的设计是整套设计的亮点,既能满足风格的要求,也能满足业主对生活品味的追求。
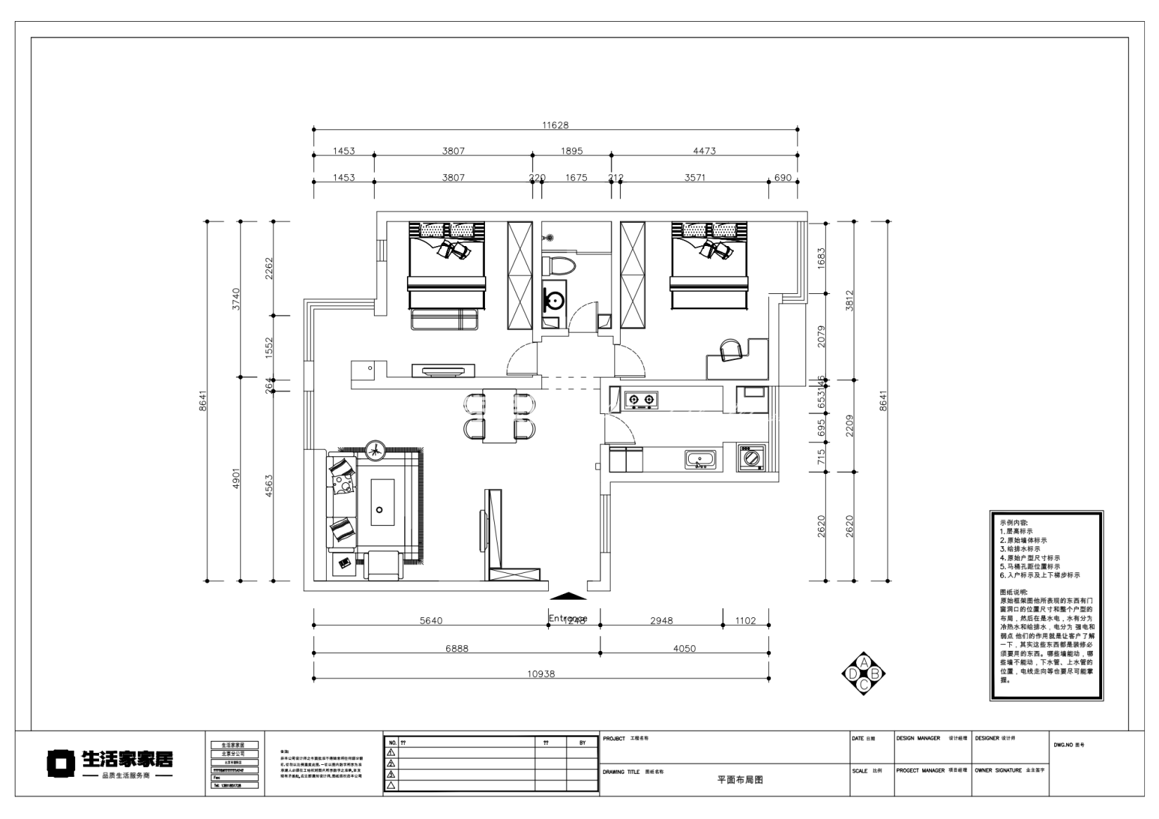
户型图
此户型为二室两厅一厨一卫格局,户型比较方正,南北朝向,主卧室及客厅面积比较大,次卧室及厨房面积较小,业主希望既能多住几口人,又能兼具其它功能。
客厅
客厅和餐厅一体,客厅飘窗在东方,采光通风良好,餐厅的位置设计了酒柜,酒柜中间可以放置微波炉及咖啡机。
