2015-04-12 14:22:38 查看人数 6300
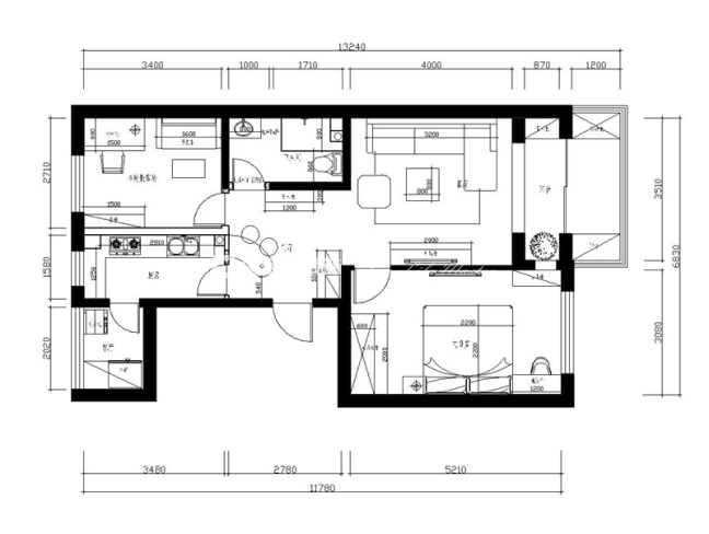
案例面积:70㎡
案例户型:三居室
装修造价:约9.65万
案例风格:田园
高教新城小区田园风格案例装修效果图
信息保护中 请放心填写
*为了您的利益,您的手机号码将被严格保护
张伟强
总监设计师
家居空间的整体不单单是色彩与功能的体现,还要充分的利用空间,家居空间没有哪一个角落是经得起损失和浪费的,每一方寸都应当担负起一种功能的承载。与其把角落看作一种空间的牺牲,倒不如发挥自己的想象加以合理的规划和整合,这样设计规划下的居室空间才会实现你对生活的梦想,坐拥自己的天地
已有 87152 人预约
七彩云南第壹城 145㎡ 中古风
长水航城 105㎡ 原木奶油风
山海春风 165㎡ 意法混搭
金地十一峯 151㎡ 意式轻奢