在线咨询
免费设计
免费量房
免费验房
京东生活家 / 装修案例 / 龙湖好望山新中式风格案例装修效果图

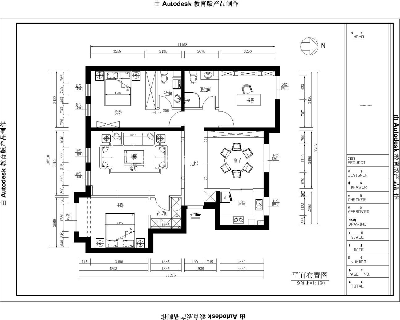
龙湖好望山新中式风格案例装修效果图

2015-04-24 11:53:42 查看人数 1419

案例面积:140

案例户型:三居室

装修造价:约18

案例风格:中式

龙湖好望山新中式风格案例装修效果图

案例设计师

已有 人预约

查看主页

精品案例推荐

查看更多
七彩云南第壹城 145㎡ 中古风

七彩云南第壹城 145㎡ 中古风

长水航城 105㎡ 原木奶油风

长水航城 105㎡ 原木奶油风

山海春风 165㎡ 意法混搭

山海春风 165㎡ 意法混搭

金地十一峯 151㎡ 意式轻奢

金地十一峯 151㎡ 意式轻奢

Hi~ 我是小葵 装修报价可以找我哟~