2015-05-15 15:39:09 查看人数 8049
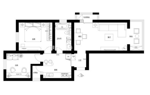
案例面积:75㎡
案例户型:三居室
装修造价:约10万
案例风格:现代
龙博苑小区现代简约风格案例装修效果图
信息保护中 请放心填写
*为了您的利益,您的手机号码将被严格保护
张伟强
总监设计师
家居空间的整体不单单是色彩与功能的体现,还要充分的利用空间,家居空间没有哪一个角落是经得起损失和浪费的,每一方寸都应当担负起一种功能的承载。与其把角落看作一种空间的牺牲,倒不如发挥自己的想象加以合理的规划和整合,这样设计规划下的居室空间才会实现你对生活的梦想,坐拥自己的天地
已有 81708 人预约
山海春风 165㎡ 意法混搭
金地十一峯 151㎡ 意式轻奢
中海汇德里 108㎡ 现代风
七彩云南第壹城 101㎡ 奶油原木风