安金梧桐府——享受148㎡的美好生活
2019-08-04 11:32:55 查看人数 1788
案例面积:148㎡
案例户型:三居室
装修造价:约29.6万
案例风格:其他,美式
木了解到了业主对于家装的偏好,最终决定了选择了雍容有度,内藏风华的美式风格,来进行家居空间的设计。通过和业主的充分交流,了解到了业主对于家装的偏好,最终决定了选择了雍容有度,内藏风华的美式风格,来进行家居空间的设计。
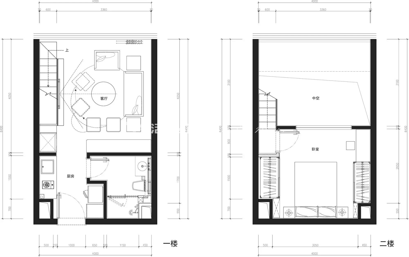
户型图
原始户型图
客厅
客厅的电视背景墙是深蓝色带鲜花图样壁纸,深蓝的色泽带来大海的深邃和神秘感。精致的图案,鲜活又精美。沙发背景墙是对称花鸟联幅挂画,带着复古气息的金属边框,给予空间以时光的厚重感。酒红色的牛皮沙发精致华美,在暖色的阳光下,散发出慵懒自在的气息。造型端正的木质茶几厚重沉稳。
卧室
主卧的棕色木衣柜、木床,色泽稳重,样式古朴而精致,带来传统美式的轻奢美感。复古样式的台灯,给予卧室更加厚重悠远的时光感。深浅不一的绿色床单,带来春日与田园的清新与美好。蓝色的墙面,为空间注入清新明快的气息。
餐厅
餐厅造型浑圆古朴的圆形餐桌,给人以圆润与厚重的感觉。立在墙侧的三角形的餐边柜,恰好利用了墙拐角的空间。窗台上摆放的玻璃瓶绿植,轻盈灵动,带来生命的美感与力量。近侧的大型鱼缸内,数十条小鱼,自由的游来游去,让整个餐厅增加富有生命的活力。
次卧
次卧蓝色的墙面搭配色彩明艳的鲜花图案的床单与窗帘,给人以清新而甜美的感觉。纱质的窗帘则带来神秘而浪漫的气息。不同于主卧,次卧由于空间相对较小,采用推拉门式的落地衣柜,更加实用且节省空间。
卫生间
卫生间设计了透明的玻璃隔断,使原本狭窄的卫生间拥有良好的视觉通透感,同时保证了干湿分离。米色的墙砖带来淡淡的温馨感,墙砖上小而精美的花纹腰线,让空间显得更加精致漂亮。蓝色的浴室柜清新柔和,搭配黑色的台面,更加耐脏易打理。
