东旭御山湖 220㎡ 新中式
2025-11-20 16:27:47 查看人数 2410
案例面积:220㎡
案例户型:别墅室
装修造价:约110万
案例风格:新中式
解锁现代东方美学,平衡三代人的审美差异!
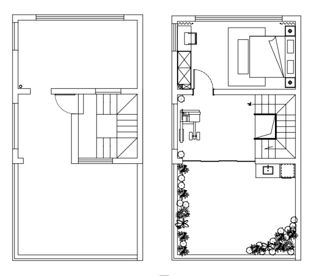
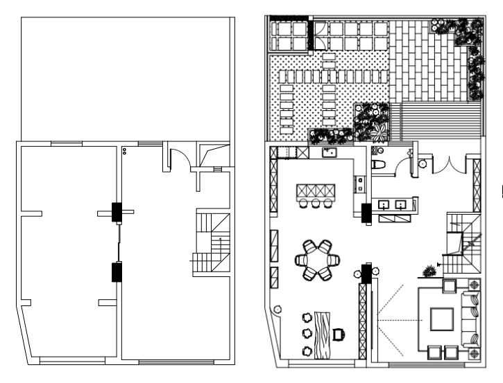
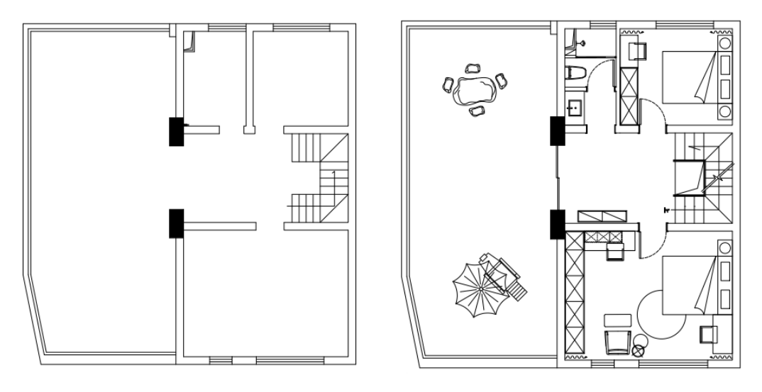
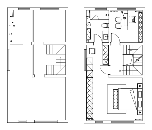
户型图
负一楼仅在车库一侧增加一个影音室,其他无改动。
一楼做公共空间使用,与花园采光通风较好,在原始入户处的挑空区做搭建,并拆除储物间,扩大入户门,拆除原始厨房餐厅空间的过道突出墙体和推拉门,整体做开放式布局。
二楼自带露台,采光通风极好,空间布局以休息区为主,仅把卫生间改为干湿分离的设计,增加使用舒适度。
三楼原始布局仅做主卧的休息区使用,私密度较高,将主卧的入口改到楼梯下方,楼梯使用更方便。
四楼空间原本存在布局不够清晰的问题,拆除过道墙体并增设一组推拉门,巧妙地将该区域划分为睡眠区、休闲区与露台花园三大功能板块。
入户花园
石板小径蜿蜒向前,或规整或随性,仿佛在引导着人去探寻庭院深处的惊喜。
绿植繁茂,树木姿态各异,有的枝叶舒展,有的虬曲苍劲,搭配着造型独特的山石,自然意趣十足。
流水潺潺水声更添了几分灵动,在这里待着,心都跟着沉静下来,中式美学的韵味真是越品越有滋味~
玄关
将原始挑空和隔断拆除,单开门变为双开门,入户更加大气,深胡桃木的玄关柜也是温润感拉满。
挂画,中式斗柜,花瓶,枝杈,吊灯,错层,都是中式的浪漫。
居中对称,也有打破常规。与入户门造景,也可做屏风遮挡,也可做端景墙,也可兼具收纳与景。
客厅
空间隔而不断,欲露不露,朦朦胧胧,既不直接,也不彻底盖住,在隔中有连接,在断中有连续。
主色调以烟灰蓝与胡桃木构建沉稳基调,点缀朱砂红与鎑金色软装元素,形成"五色观"的当代诠释。
墙面采用哑光质感的暖色墙漆,模拟宣纸的肌理效果,搭配定制水墨地毯,使空间呈现"远山如黛,近水含烟"的诗意画卷。
家具摆件遵循传统建筑中轴对称原则,以沙发组合构建视觉中心。
背景墙采用山水纹大理石与胡桃木格栅的虚实结合,既保留"框景"的造园手法,又通过隐藏式收纳系统实现功能升级。
厨房
开放式厨房以“无界交互”的理念重构空间关系,而胡桃木色系的新中式风格则以其温润的质感与深邃的色调,为这一功能场域注入东方美学的精神内核。
操作区遵循“洗-切-炒”黄金三角动线,嵌入式蒸烤箱、洗碗机等现代电器无缝融入,实现“传统形制与智能功能”的共生。
突破传统厨房的封闭形态,采用“中岛为核心,动线为脉络”的开放式设计。
石材台面与升降插座,既可作为备餐区、早餐台,亦能化身轻食吧台,满足“烹调-用餐-社交”的多重场景需求。
餐厅
餐厅以圆形胡桃木餐桌为核心,其直径根据空间尺度定制,既保证用餐舒适度,又通过“无棱角”的设计传递包容感。
桌面选用整块胡桃木实木,保留天然木纹的流动感,搭配嵌入式转盘,兼顾传统宴饮礼仪与现代便利性。
上方圆形吊顶以胡桃木饰面板勾勒层次,内嵌隐藏式灯带,吊顶边缘采用45度斜切工艺,增强立体感的同时,与下方餐桌形成垂直呼应,构建“上下相合”的空间秩序。
灯光设计遵循“主次分明”原则:吊灯提供基础照明,营造温馨氛围,面洗墙灯与餐桌聚光灯补充功能照明,突出食物色泽与木作纹理。
其他
在中国传统文人的精神世界里,茶厅是“坐忘尘嚣、品茗论道”的雅集之所。
通过实木大板茶桌、太师椅、条凳的经典组合,辅以山水背景墙与对称博古架的意境营造,构建出兼具实用功能与精神意蕴的当代茶空间,让每一次品茗都成为与东方美学的深度对话。
卧室
三楼空间以“私密性重构与功能整合”为核心,通过入口位置调整、材质系统化运用及家具模块化设计,将原始单一休息区升级为集静谧、收纳与美学于一体的休憩场所。
床尾到顶储物柜延伸出斗柜系统,向主卫墙面延伸,构建出“储物-办公-化妆-展示”为一体的空间。
以胡桃木饰面板为框架,中间嵌入定制水墨画墙布,画芯主题为“远山含雾”,与胡桃木的深色纹理形成“轻与重”的对比,平衡空间视觉重心。
地面选用实木复合地板,防滑且耐划痕,背景墙设计采用对称式布局。
次卧
次卧以“中性化高级感”为定位,通过浅灰色墙面与黑色皮质家具的碰撞,构建出克制而富有质感的休憩空间。
床尾储物柜与女孩房同款设计,但调整材质为哑光灰柜体搭配黑色金属拉手,强化空间的整体性。
儿童房
女孩房以“成长型空间”为设计原点,采用暖白色的墙面和藕粉色的软装,营造出柔和而不甜腻的视觉氛围。
地面选用哑光质感的木地板,既中和粉色的甜美,又为未来色彩调整预留弹性空间。
L型储物柜沿床尾墙面延伸,容纳衣物、玩具等大件物品。
左侧开放格结合台面,形成“储物-阅读-创作-化妆”四位一体的功能模块。
儿童房的设计延续了低饱和的驼色系,将其巧妙融入床品、定制柜与窗帘之中。
这种柔和的色调不仅营造出温馨、宁静的氛围,还能有效缓解孩子的视觉疲劳,为孩子打造一个舒适宜人的成长空间。
儿童房的整体布局与二楼次卧保持一致,在床尾设计出集书桌台面与储物空间于一体的储物柜。
阳台
与露台花园相连的地方,摆放着一张藤制吊椅
和一个小茶几。闲暇之余,窝在吊椅里,轻轻摇晃,感受着微风的轻抚,隔着玻璃门欣赏精心打造的露台花园。
书房
步入书房首先映入眼帘的,是一方沉稳大气的胡桃木大板书桌。书桌后方,一组同色系定制书柜沿墙而立,以到顶设计延伸纵向空间感.
书柜采用胡桃木柜门与茶色玻璃柜门的组合设计,虚实相映间赋予空间灵动气息。
柜内展示格特别选用水墨石材背板,其天然纹理如山水画卷般延展,层次分明而富有艺术张力,令藏书与藏品皆成为空间装饰的一部分。
书桌之上,一盏中世纪风格复古台灯静静伫立。黄铜灯体与暖光灯罩的搭配,既复刻了古典韵味,又以柔和光线营造出专注阅读的理想环境。
