中海汇德里 108㎡ 现代风
2025-12-29 11:19:46 查看人数 5853
案例面积:108㎡
案例户型:三居室
装修造价:约10万
案例风格:现代
灰色系地砖沉稳大气,以简洁的色调奠定空间基调,暖白色墙漆则柔和温馨,二者相辅相成,勾勒出简洁而不失格调的空间轮廓。
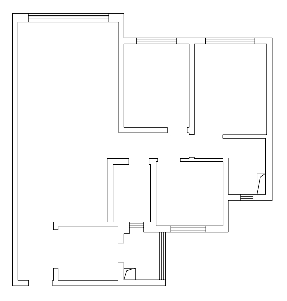
户型图
原始户型分析 1.采光通风较好,动线流畅。 2.拥有独立的洗衣阳台和景观阳台。
户型改造方案 1.在原始厨房与生活阳台之间增加一组隔断,避免油烟外泄。 2.将主卧自带的卫生间拆除,打造衣帽间。
玄关
玄关处打造一整组到顶储物柜,实现空间高效利用。封闭式储物区、挂衣区与换鞋区合理规划,功能完备。
胡桃色封闭式区域温润雅致,栅格背板搭配挂钩的换鞋区,方便悬挂衣物包袋,换鞋凳与储物空间结合,层次丰富,尽显实用与美观。
客厅
灰色系地砖沉稳大气,以简洁的色调奠定空间基调,暖白色墙漆则柔和温馨,二者相辅相成,勾勒出简洁而不失格调的空间轮廓。
而胡桃木色的木饰面板与栅格的巧妙融入,犹如为空间注入了一股温润的暖流,在硬朗的现代感中增添了几分自然的亲和力。
电视背景墙巧妙运用了三种元素的撞色搭配,胡桃木的储物区散发着自然质朴的气息。
深灰的内嵌电视区彰显沉稳大气,外侧的暖白色则带来柔和的视觉感受。三种色彩相互交织,层次丰富且和谐统一。
背后暖黄灯带的巧妙设置,更是为整个背景墙营造出温馨惬意的氛围,让人仿佛置身于温暖的港湾。
下方落地储物柜的台面选用灰色系石材,清爽的质感瞬间提升了空间的格调,使整个区域既实用又美观。
客厅的家具搭配同样注重清爽感与舒适感的平衡,黑色直排皮质沙发线条简洁流畅,尽显时尚大气。棕色系单人椅则带来温暖舒适的坐感体验,方形石材茶几质感十足,与整体风格相得益彰。
后期搭配上浅灰色的大尺寸地毯,柔软的质地不仅增加了脚部的舒适感,更在视觉上为空间增添了一份柔和与温馨。
无主灯的设计理念贯穿始终,巧妙地突出了墙面上现代感十足的壁灯、角落里散发着柔和光芒的落地灯,以及顶部精准照明的射灯和筒灯。
阳台
地砖通铺至阳台,这一设计打破了传统空间的界限,将阳台巧妙地纳入客厅使用,极大地拓展了空间的使用范围。
靠窗放置一个石材台面的茶桌,搭配奶茶色皮质圆椅、咖色的单皮质椅,做闲暇之余的小酌的地方,围合出温柔惬意的氛围感。
过道
无主灯设计,不仅拉高了层高,更让视野变得开阔明亮,使整个空间呈现出一种通透、大气的空间感。
厨房
一扇三折叠式极窄边框吊轨推拉门,精妙划分厨房与过道,开合间尽显空间通透感。
二字形橱柜依照墙体走向,收纳与操作动线流畅无阻。靠生活阳台设洗菜池,采光通风更好,日常使用也更便捷。
内嵌电器与灰色系墙地砖相得益彰,视觉上更加清爽,且无卫生死角。
餐厅
餐厅区域背景与客厅自然衔接,沿墙面以胡桃木色系木饰面板打造L形背景墙,温润的木质纹理与整体空间和谐相融,尽显沉稳雅致。
厨房转角处则以暖白色墙漆过渡,配以一幅色彩明快的肌理画作点缀,为空间注入清新柔和。
就餐区以深灰色石材台面搭配四人位餐桌,深咖色皮质餐椅围合而坐,质感与舒适兼备。一盏简约线性吊灯垂落其间,光影流转间勾勒出温馨的就餐氛围。
地面再以一盆黄金榕点缀,盎然绿意与自然气息交织,令空间更添生机与灵动。
卧室
休息区以浅灰色调为空间主旋律,局部融入木质元素,营造出静谧而温润的休憩氛围。
墙面采用上浅灰、下胡桃木的撞色木饰面设计,层次分明,冷暖交融间勾勒出空间的立体轮廓。
局部石材以竖向拼接工艺呈现,清冽的肌理与木质纹理碰撞,碰撞出现代风格独有的精致与高级感。
无主灯设计延续空间简洁基调,线性吊灯垂落床榻上方,光影柔和而富有韵律,搭配浅咖色系皮质大床,清爽气息与舒适质感层层递进,赋予休憩时光更多从容与惬意。
衣帽间
主卧优化空间布局,将原始卫生间改造为功能完备的衣帽间,靠窗区域巧妙整合化妆桌与洗手池,形成一体化功能模块,化妆或日常护肤无需往返奔波,细节设计贴合生活场景,大幅提升居住便利性与私密性。
次卧
儿童房设计以童趣与成长性为核心,通过色彩与功能的巧妙融合,打造兼具趣味性与实用性的成长空间。
衣柜采用灰绿色与暖白色撞色设计,视觉清新柔和,延伸而出的同色系书桌搭配灰绿色单人椅,形成连贯的学习休闲区域,满足孩子不同成长阶段的需求。
背景墙以上下拼接工艺呈现,上方铺陈童趣主题壁纸,下方涂刷与衣柜呼应的豆绿色墙漆,层次丰富且充满活力,为空间注入灵动气息。
睡眠区以灰色系皮质床为基底,搭配航天主题床品与同色系窗帘,既延续整体色调的沉稳感,又以趣味元素点亮童真世界。
