长水航城 105㎡ 原木奶油风
2026-01-17 15:06:56 查看人数 4488
案例面积:105㎡
案例户型:四居室
装修造价:约17万
案例风格:现代
基础的木色、白色、米色搭配起来,空间就显得明亮又温馨。
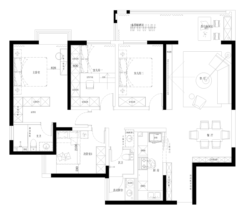
户型图
户型分析 1.南北通透,明厨明卫,采光透气都很好。 2.入户有独立玄关,隐私性很好。
户型改造 1.原始厨房与生活阳台相连,避免油烟外漏,将生活阳台与公共卫生间相连。 2.在主卧与主卫之间增加一组L形储物柜,避免卫生间入口正对休息区。 3.其他空间布局无太大改动,仅增加储物空间。
玄关
原木奶油风的基调从入户开始,左手边精心打造到顶储物柜,成为空间实用与美观的完美融合点。
暖白色柜门纯净柔和,与原木背板相互交织,其中穿插的悬空储物区,更是点睛之笔。悬空储物台满足日常归家,钥匙、包包等小物件可随手搁置于此,方便拿取避免杂乱,让空间始终保持整洁。
靠过道一侧采用一门到顶的设计,柜子内洞洞板的设置,为小物件提供了灵活的收纳方式,可根据实际需求自由调整挂钩位置,挂放帽子、围巾等物品,穿衣镜巧妙嵌入,方便整理着装,还能在视觉上拓展空间。
客厅
浅灰色地砖蔓延至公共区域的每一寸角落,与暖白色墙漆相互配合,清爽之感瞬间扑面而来,带来纯净而惬意的氛围。
电视背景墙巧妙延续了玄关暖白色与原木色的拼接设计,利用石膏板精心雕琢出两块大小不一的长方形,其间融入中式榫卯设计,以木质元素将两个部分紧密相连增加层次感。
下方搭配原木色地柜,不仅在视觉上与整体风格相呼应,更提供了充足的储物空间,让生活杂物得以有序收纳。
灰色直排沙发与深棕色单人椅相得益彰,营造出沉稳而温馨的交流氛围。灰白撞色的大尺寸地毯铺展于地,柔软而舒适。
其上放置的圆形组合茶几,造型简约而不失时尚,既方便日常使用,又成为空间中的视觉焦点,为会客时光增添了几分雅致。
灰色地砖通铺至阳台,使室内外空间自然过渡,过道垭口采用圆弧造型,柔和的线条为奶油风空间注入温润的气质。
靠沙发一侧设计到顶储物柜,强大的收纳功能满足家庭日常的储物需求,让空间始终保持整洁有序。
阳台
另一侧则贴心打造宠物柜,为可爱的猫猫营造出专属的休闲天地,让宠物也能在这方空间中享受惬意生活。
与之衔接的墙面采用玄关同款洞洞板,以竖向悬空储物的方式巧妙放置小型盆栽,让每一个角落都充满自然的活力。
厨房
三折叠的黑色极窄边框门成为厨房与过道之间的灵动隔断,巧妙地将中式厨房烹饪时产生的油烟隔绝开来,避免其肆意弥漫至其他空间。
折叠门又未对采光造成丝毫阻碍,阳光得以自由穿梭,让厨房在烹饪时也能保持明亮通透,为烹饪者带来愉悦的视觉体验。
厨房内部,U 形设计的橱柜精准贴合墙体走向,充分利用每一寸空间,展现出极高的空间利用率。
橱柜的配色搭配独具巧思,下方地柜选用原木色储物柜,质朴的木色散发着自然的气息,不仅为厨房增添了一份温馨与亲和力,更具备强大的收纳功能。
而吊柜则采用暖白色系,这一柔和的色调与家中其他空间的储物柜配色相呼应,形成了整体家居风格的统一性与协调性。
餐厅
开放式布局巧妙地将客餐厅相连,以木质元素与暖白色系贯穿始终,营造出和谐统一的视觉感受,让整个空间既温馨又显开阔大气。
依据墙体走向精心打造的 L 形餐边柜,从餐厅自然延伸至沙发背景墙,巧妙地模糊了区域界限,增强了空间的整体感。
过道处的餐边柜采用壁龛式设计,以原木材质打造出圆润流畅的圆弧造型,既避免了直角可能带来的生硬感,又增添了几分柔和与优雅。
椭圆的原木餐桌与咖色系皮质餐椅相得益彰,原木的温润质感与皮质的柔软舒适完美融合,营造出温馨宜人的用餐氛围。上方一盏黑色线性灯精准照亮餐桌,光线柔和而均匀,为用餐时光增添了一抹轻盈与温润。
L形餐边柜的储物设计独具匠心,将储物空间一分为二。上下部分采用暖白色柜门,简洁大方,可收纳大量物品,保持空间整洁有序。
中间镂空区域则运用原木材质,打造出别具一格的置物区。既能摆放精美的装饰品,增添生活情趣,也可设计插座,放置小电器,轻松打造出一个便捷的西厨区,满足多样化的生活需求。
一盏水晶灯吊灯成为空间的视觉焦点,为整体氛围注入一丝奢华与精致。下方搭配同材质抽屉,兼顾美观与实用,方便收纳各类杂物。
卧室
卧室地板选用与定制柜同款的木质元素,浅色系的木地板铺陈开来,温润的质感从脚下蔓延,让整个卧室沉浸在自然柔和的氛围之中。
原始主卧面积较大却缺少独立的储物空间,所以在入口区域打造 U 形储物柜,巧妙地增加了收纳容量,让衣物、杂物等有了妥善的安置之处。
更有效避免了卫生间正对休息区,营造出更为私密、健康的睡眠环境。
暖灰色系的皮质双人床成为卧室的视觉中心,其柔和的色调传递出宁静与温馨。
与之相搭配的同色系床头柜和窗帘,在色彩上相互呼应,整体风格和谐统一,营造出慵懒惬意的氛围。
床尾靠近飘窗的位置,摆放着一张成品的化妆桌,黑白配色与整体环境形成巧妙对比又相得益彰。搭配的羊羔绒化妆椅,为日常的梳妆打扮增添了一份舒适与惬意。
飘窗处更是精心布置,毛茸茸的飘窗垫柔软舒适,仿佛云朵般轻柔,整个飘窗区域弥漫着温馨浪漫的气息,成为卧室中一处的休闲角落。
次卧
小次卧的整体配色与其他空间一脉相承,以柔和且协调的色调营造出温馨的氛围,到顶储物柜沿墙而立,充分利用垂直空间,极大增加了收纳容量,让杂物得以有序归置。
柜体中间巧妙融入木质元素,将柜体一分为二,既丰富了视觉层次,又增添了自然质朴的气息。
从木质元素延伸而出的原木书桌台面,巧妙替代了传统床头柜的功能。打造一个安静的学习、工作角落,满足实用性与美观性。
儿童房
儿童房的设计则充分考虑了孩子的成长需求与空间的高效利用,依据墙体走向精心打造的榻榻米,成为空间的核心区。
榻榻米与书桌、衣柜一体化的设计,榻榻米下方隐藏着丰富的储物空间,可收纳孩子的衣物、玩具等物品,让房间始终保持整洁有序。
卫生间
公共卫生间以干湿三分离的设计,显著提升了日常使用的舒适感与便利性。
圆弧造型的水波纹玻璃巧妙打造出隔断。其柔和的曲线不仅避免了直角可能带来的生硬感,为空间增添了几分灵动与优雅,在光影的映照下营造出朦胧的氛围。
淋浴区的门同样采用带有圆弧造型的玻璃门,与过道隔断在造型上相互呼应,形成有序的整体美感,使整个卫生间的设计风格更加统一协调。
除了功能性的精妙设计,卫生间内还巧妙融入了诸多可爱元素。
狗狗造型地垫、精心摆放的猫狗造型摆件、纸盒与贴纸,或憨态可掬,或灵动活泼,都以细腻的笔触和丰富的色彩,展现出猫狗的可爱模样。
