波尔多庄园中式别墅
2019-09-26 14:59:21 查看人数 5484
案例面积:320㎡
案例户型:别墅室
装修造价:约52万
案例风格:中式
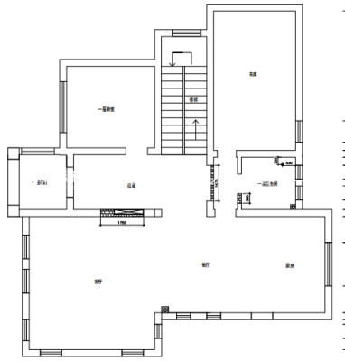
好户型具备的特点有户型方正、动静分区、干湿分区、公私分区、南北通透、采光良好、进深/开间比例合理等特点,好的户型不仅居住舒适,空间、面积的利用率也高。从专业的角度来看,流行的家居装饰物,存在两多一少的情况:摆设品多,可移动的装饰品多,固定性装饰品少,这种格局使居室有很强的灵活性和现代感。以前家装大多都以木质材料为主,现在则是有选择性的使用木材,多用现代气息较浓的玻璃材料。除水、电和墙面打灰等基础装修外,其他部分都可算装饰设计。
户型图
户型图
客厅

传统新中式风格家具虽以木质材料居多,颜色多以仿花梨木和紫檀色为主。墙壁既可四白落地,也可以选择配合深褐色家具的米白、米黄或白色。最具代表性的家具是茶几、地灯、圈椅、中堂等。
卧室

根据卧室主人的喜好进行再创作,使拥有私家别墅的男主人觉得舒服惬意,又有他们要的文化气息。整体以灰白色系为主,蓝色进行点缀,既有艺术感又富有生活气息。
餐厅

装饰品上采用瓷器,月牙门,中国画,布艺等具有一定含义的中式古典物品 装饰品 装饰品 中式餐厅软装设计方案 灯饰/家具/布艺/ 挂画 ,最舒适放松的状态便是自由而处,自在而为。中国人喜欢将幸福变成美食,味之所至,内心便有所通达。尘世反间,若寻得一处清幽僻静之地,感受“山光悦鸟性,潭影空人心”的空灵与静谧;短暂逃离繁忙喧闹的都市,约上三两好友,树下小酌,共享美食,实为一件乐事 ,餐厅的设计是从传统中式风格中演变出来的现代中式,中式风格给人一种庄严,典雅。
次卧

中式风格不是纯粹的元素堆砌,而是通过对传统文化的认识,将现代元素和传统元素结合在一起,以现代人的审美需求来打造富有传统韵味的事物,让传统艺术在当今社会得到合适的体现,喜欢的才是最好的设计。
卫生间

中式风格的特点是后现代手法来表现中式风格,主要在局部区域内进行点缀和渲染;卫生间的瓷砖首先要考虑的便是吸水率和防滑防污的能力,这三点尤为重要;其次是选择什么类型的瓷砖,仿古砖比较合适,复古典雅内敛,符合中式风格的气质。