苹果社区休闲度假之选
2019-09-30 18:41:29 查看人数 5506
案例面积:97㎡
案例户型:三居室
装修造价:约18万
案例风格:混搭
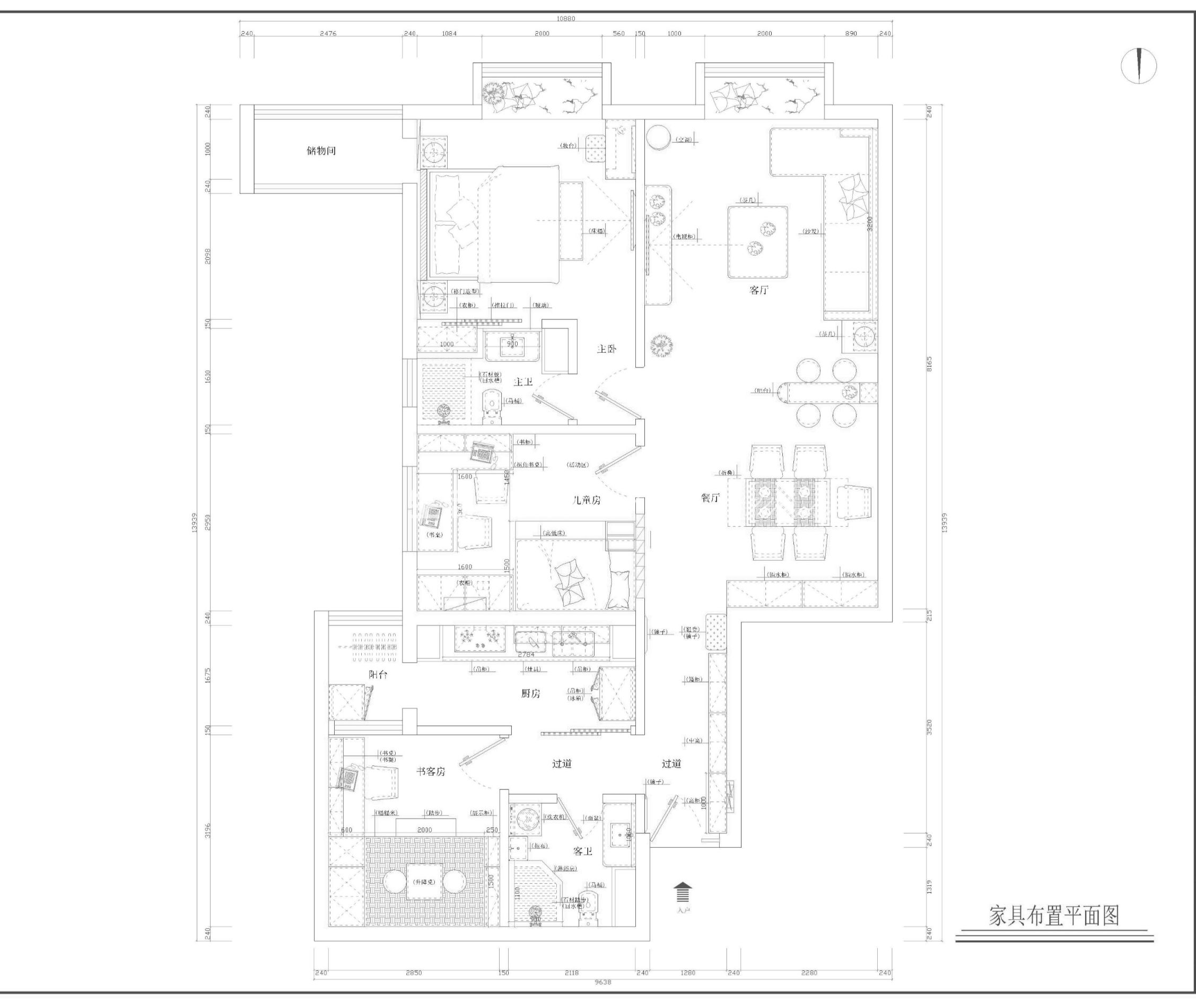
本方案户型 两个过道:过道1功能要有衣帽柜,照片墙 地面设计了错层铺贴,进门突显实用美观功能,过道2是通往厨房 卫生间和卧室的功能 作为交通要道 当然要宽敞明亮 ,顶面设计做了辅灯的设计 还有把厨房的单门改成通透实用的推拉门,客餐厅:空间是长方形 座向距离不是很深 所以在设计时 墙面做了一些背景凹凸造型 造型内铺贴壁纸 使空间有一定的进深感。主卧室及主卫:卧室空间不大 衣柜空间不够 卧室的阳台门在床头 柜子采用嵌入式设计 通往阳台的门采用床头背景隐形推拉门设计。这个房子主要是休闲度假,所以整体风格和功能以放松为主,各个功能区动线流畅,色彩明亮,气质高雅,符合客户的需求和品味。
户型图
原始户型图
客厅
客餐厅,空间是长方形,座向距离不是很深,所以在设计时墙面做了一些背景凹凸造型,造型内铺贴壁纸,使空间有一定的进深感。总体空间显得古朴深沉又内敛实用。
卧室
卧室空间不大,衣柜空间不够,卧室的阳台门在床头,柜子采用嵌入式设计,通往阳台的门采用床头背景隐形推拉门设计。
餐厅
客餐厅,空间是长方形,座向距离不是很深,所以在设计时墙面做了一些背景凹凸造型,造型内铺贴壁纸,使空间有一定的进深感。总体空间显得古朴深沉又内敛实用。
次卧
质上结合了软包材质、金属 ,让整个空间端庄的同时也具有不饱和的呼吸感,更具通透的流动性,整体的颜色端庄又不失优雅。
卫生间
房子为三人居住,卫生间的使用率也是比较大的,分区规划合理明确。卫生间墙砖是地砖上墙,卫浴选的科勒。
