北京天合园现代简约
2019-09-30 20:15:56 查看人数 5808
案例面积:188㎡
案例户型:四居室
装修造价:约43万
案例风格:现代
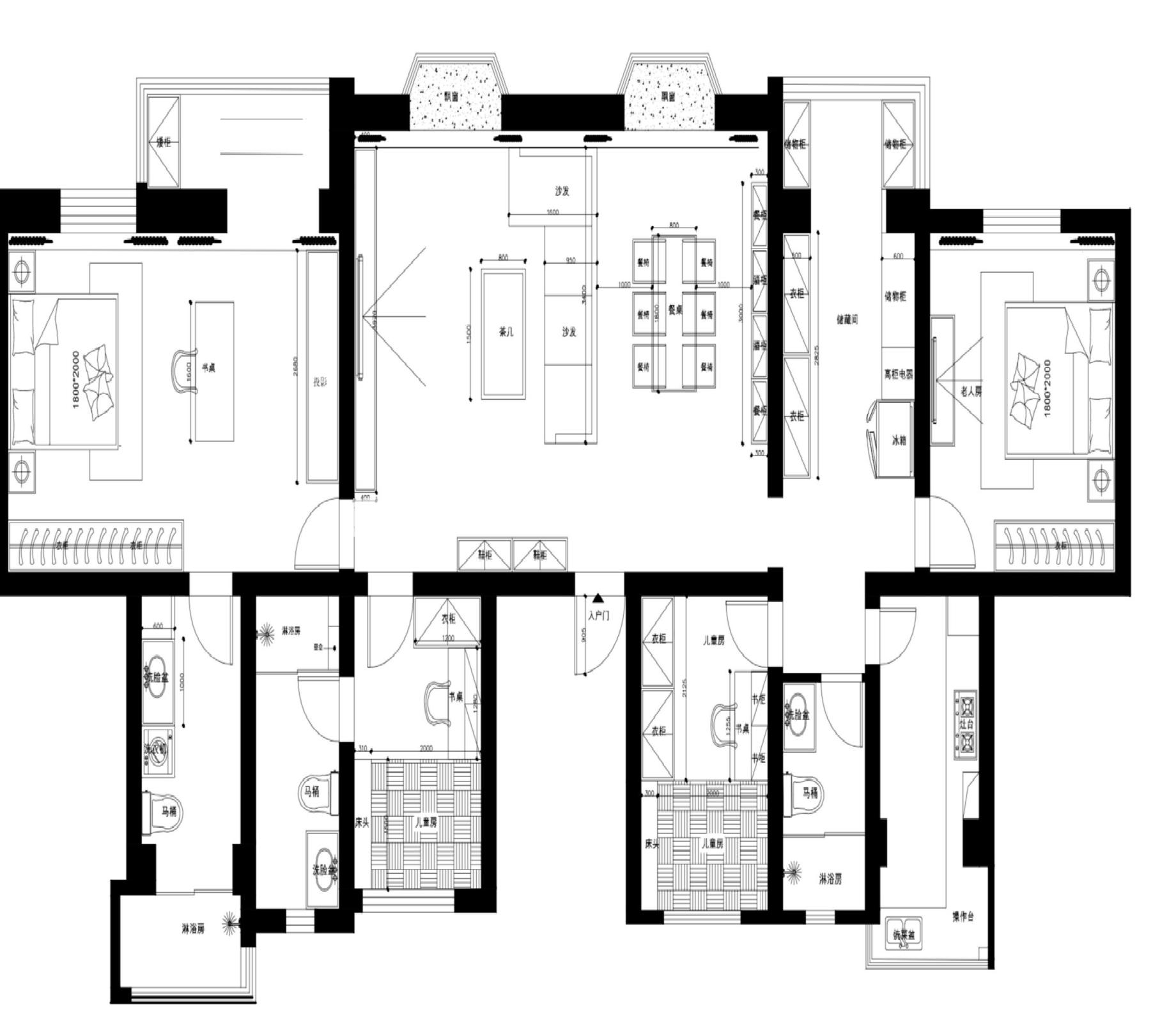
四房两厅三卫 建筑面积大约:188㎡ 户型各房间设计规范合理。客厅开间7.5米长,5米宽,长方形空间,有利于客厅与餐厅共用一起内部的布置。主卧开间6米长,是较为宽大的卧室开间尺寸,门和窗的位置也合理。采光通风也比较好,还有书房的空间,独立的卫生间,作为套房。本户型是一家四口,加上父母,所以整体风格为现代简约,温馨,流动性好,因为孩子还比较小,准备要第二个孩子。
户型图
原始户型图
客厅
根据客户实际居住情况建议打通客厅与次卧,做地台设计,形成空间联动,整体大气有层次感,取代传统客厅空间的视觉中心单一,吸引次卧采光,让进门视角呈现长厅的采光和对流.....
卧室
通过调整主卧与客厅墙的布局 增大了主卧的储物功能 满足生活的基本需要。材质上结合了石材、木质、墙纸的元素 ,让整个空间端庄的同时也具有不饱和的呼吸感,更具通透的流动性,整体的颜色统一......
餐厅
餐厅的整体色调和客厅相互辉映,餐厅的灯起到了很好的点睛作用与餐桌进行呼应,桌上的可爱装饰品也营造出轻松愉快的用餐环境。
次卧
卧室布局没有太多的变化,因为安装了中央空调,所以在衣柜上方设计了吊顶,方便安装空调的主机也方便衣柜可以做到顶,充分利用衣柜的空间,避免出现卫生死角。卧室的小阳面积不是很大,设计成休闲区,闲暇时可以看看书,晒晒太阳。
卫生间
明亮又宽敞的卫生间,采用大理石质感的墙砖搭配挂画,使整个空间看起来非常有艺术气息。经典的白色洗面台,运用玻璃作为干湿分离,简洁干净,易打扫。
