华润大厦45平米loft
2020-07-30 09:58:37 查看人数 1535
案例面积:46㎡
案例户型:二居室
装修造价:约9万
案例风格:北欧
此案例坐标位于山西·太原华润大厦小区,房子的主人是一对年轻小夫妻。北欧风格运用大面积的浅色作为背景墙面,造型简约,会有一些抱枕、装饰画等亮色的点缀。
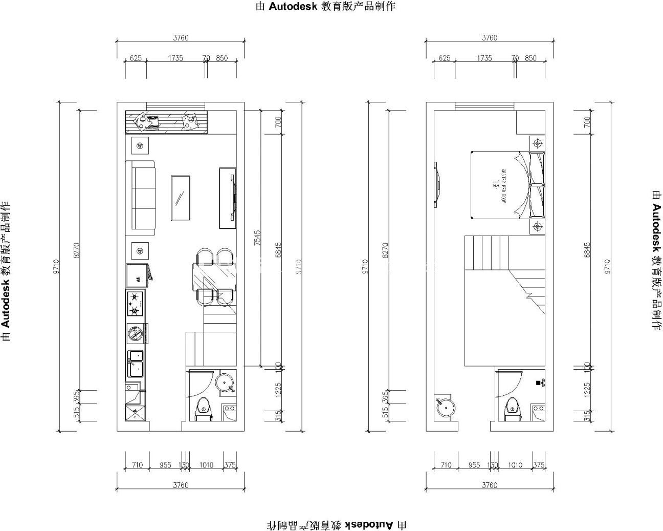
户型图
还会采用一些橡木元素、格栅、装饰线条等,十分贴切自然,瞬间让空间变的热情温暖。
客厅
客厅还会采用一些橡木元素、格栅、装饰线条等,十分贴切自然,瞬间让空间变的热情温暖。植物选于北欧风格也非常重要,一般为大叶植物,如:天堂鸟、仙人柱、虎皮兰.......
卧室
还会采用一些橡木元素、格栅、装饰线条等,十分贴切自然,瞬间让空间变的热情温暖。
