中车国际141平现代轻奢
2020-10-14 10:40:05 查看人数 2120
案例面积:141㎡
案例户型:其他室
装修造价:约28万
案例风格:现代
墙面采用浅灰色德国进口舒纳沃恩乳胶漆,地面采用全抛釉瓷砖菱形铺设让空间显得更加宽敞,门厅用黑白波打线收口与客厅形成差异化,门窗套采用TATA熟栗色让整个家里更加彰显韵味和成熟,顶面采用无灯带设计,以及金属条造型,简洁明了让空间显得更加饱满。 卧室和客餐厅截然相反,装饰简单明了,顶面采用简单的平板叠级线,颜色比较温馨淡雅,窗帘以及床品色彩明快和画品形成呼应,让整个空间不在单调,床头柜和床头采用轻奢金属质感的设计让整个氛围更加高档。 厨房开放式,操作空间划分明确,加入蒸箱,烤箱,消毒柜,洗碗机使得整体厨房功能更加现代而精细,整体厨房采用欧派双饰面材质,柜体为环保等级更高的多层实木板制作,吊柜和地柜采用套色设计感觉更加活泼明快。墙面采用浅灰色德国进口舒纳沃恩乳胶漆,地面采用全抛釉瓷砖菱形铺设让空间显得更加宽敞,门厅用黑白波打线收口与客厅形成差异化,门窗套采用TATA熟栗色让整个家里更加彰显韵味和成熟,顶面采用无灯带设计,以及金属条造型,简洁明了让空间显得更加饱满。
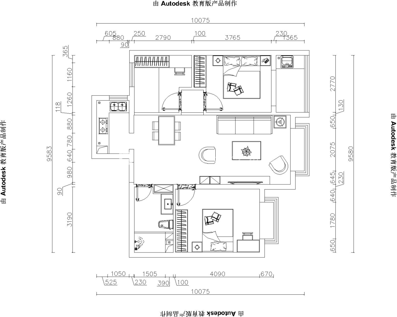
户型图
原始户型图
客厅
墙面采用浅灰色德国进口舒纳沃恩乳胶漆,地面采用全抛釉瓷砖菱形铺设让空间显得更加宽敞,门厅用黑白波打线收口与客厅形成差异化
卧室
卧室风格截然相反,装饰简单明了,顶面采用简单的平板叠级线,颜色比较温馨淡雅,窗帘以及床品色彩明快和画品形成呼应,让整个空间不在单调,床头柜和床头采用轻奢金属质感的设计让整个氛围更加高档
餐厅
整体厨房采用欧派双饰面材质,柜体为环保等级更高的多层实木板制作,吊柜和地柜采用套色设计感觉更加活泼明快,设计感明显
次卧
男孩房,整体采用欧派双饰面材质,柜体为环保等级更高的多层实木板制作,吊柜和地柜采用米白色设计感觉更加活泼明快和干净
卫生间
设计师在本案例中卫生间采用了干湿分离,设计师考虑细节方面,对卫生间的设计也是用心,通过一些插画部分凸显设计感
