时尚简约的现代三居美宅
2018-12-26 16:21:01 查看人数 2497
案例面积:108㎡
案例户型:三居室
装修造价:约18.9万
案例风格:现代
本案整个户型十分方正,几乎没有不规则不方便设计的地方。但整个户型偏向于狭长,尤其是厨房、餐厅、客厅完全在一条线上。为空间的采光考虑,厨房做了半开放式设计,来保证空间的视觉通透性,而比较宽阔的儿童房,则单独分出了衣帽间的区域,使之使用更加方便本案采用现代简约风格设计。在材料的运用上相比一些传统的风格更加自由多变。大量运用时代感十足的金色金属框条,茶几也使用造型简约的圆形案几,经典的黑白色搭配,经久耐看。在色彩上以白色为主色调,使空间更加明亮,灰色的使用则使整个空间更显沉静。
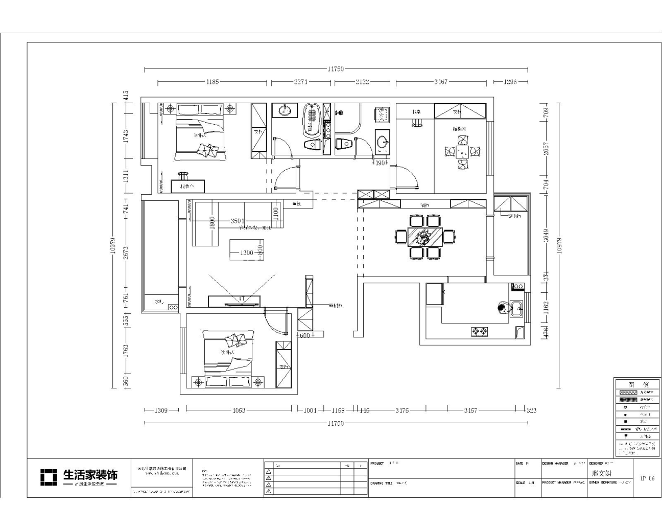
户型图
原始户型图
客厅
客厅的金属吊灯线条流畅,造型时尚华美。沙发背景墙一幅铅绘航海图,文艺清新而分外有情怀。简约的深灰色三人座沙发与单人座沙发搭配,简单大方,同时也为客厅让出了更多的活动空间。电视背景墙以许多金色的金属框条装饰,于规整庄重中,带几分现代的华丽感。
卧室
考虑到主人的习惯,主卧设计了壁挂式的电视,相比坐式电视,更加节省空间,使卧室的动线更加流畅。白色的落地式大衣柜刚好满足衣物收纳的需求。
餐厅
餐厅与客厅相邻,设计了大面积的餐边柜来同时满足餐厅与客厅的收纳需求。同时半开放的餐边柜还可以摆放一些精美饰品来装点空间,餐厅的侧墙与客厅一脉相承,同时做了金属框条装饰。在美化空间的同时,餐厅与客厅的区域划分更加明朗。
次卧
次卧以多功能房进行设计,床是可折叠收回的,在需要是留出更多的空白空间。顶部的收纳柜,则在有效利用空间的同时,部分满足次卧的收纳需求。由于次卧较小,整个空间多采用白色,这样可以使整个空间更显明亮、整洁、宽阔。
卫生间
卫生间深浅不一的灰色墙砖搭配颜色多样的花格腰线,独特而别致。白色的浴室柜,给人以整洁的明亮感。
