简约三居|弘阳昕悦府97平三室现代
2019-03-06 14:22:09 查看人数 2385
案例面积:97㎡
案例户型:三居室
装修造价:约16.7万
案例风格:现代
本案户型相对比较方正,便于设计。除卫生间外,其余各空间均有窗户,尤其客厅和主卧的采光和通风情况都比较好。主卧自带卫生间,非常方便业主的使用。厨房在整个方正的空间内,更显狭长,因此采用分段式的灯光设计,以确保可以照亮每一寸空间。业主比较喜欢沉静安稳的简约空间,因此在设计上,较多的使用灰色调,来营造沉静大气的现代空间氛围。而白色的运用则使空间更显明亮宽阔,此外,点缀以亮黄色,橘红色、金黄色等比较鲜亮的色彩,使空间不会过于单调或沉闷。
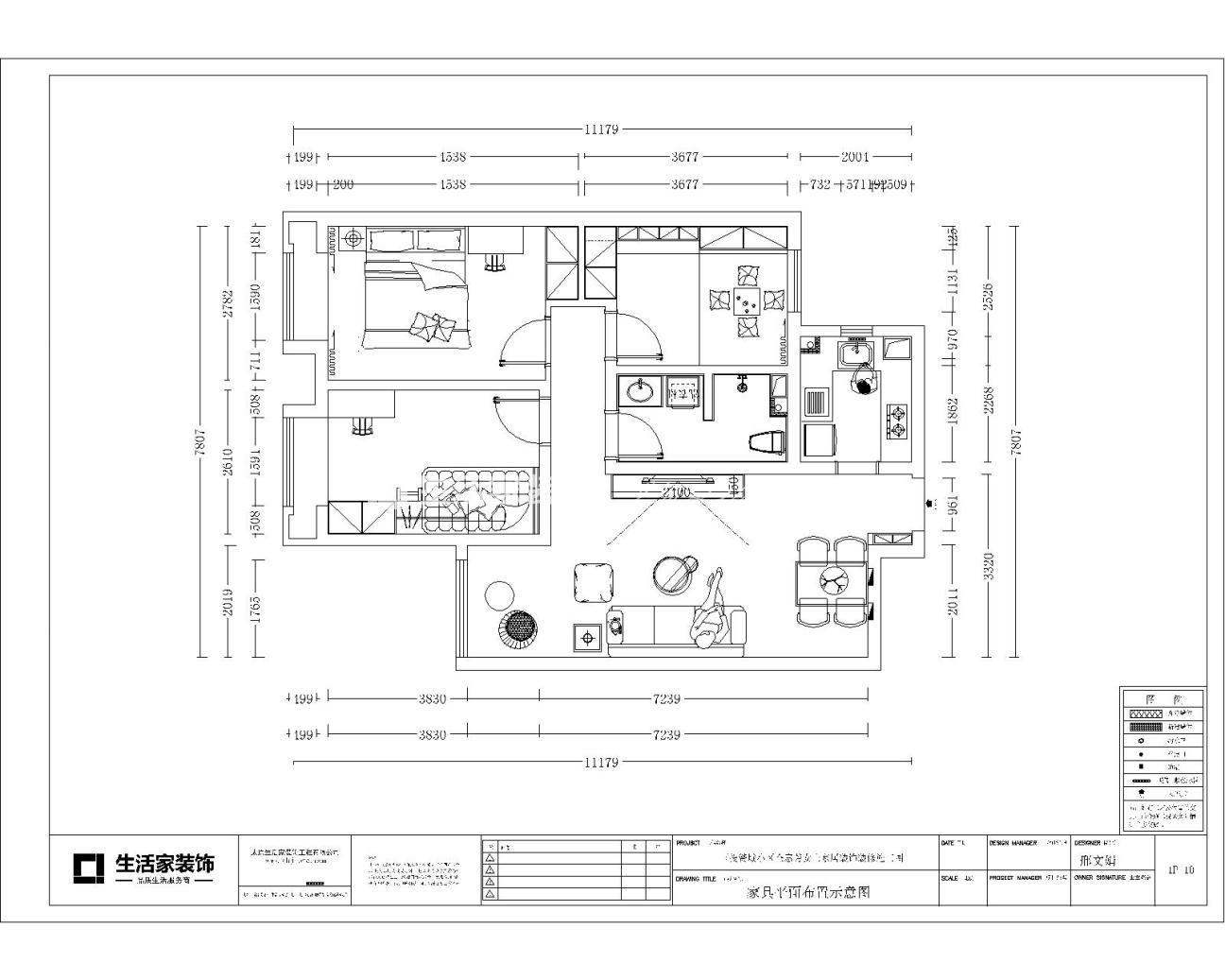
户型图
原始户型图
客厅
客厅的深灰色沙发柔软舒适,于沉静的色彩中,给人以几分温软的感觉。沙发背景墙三幅现代感极强的联幅挂画,以黑色与金黄色搭配,给人以沉稳华丽的尊贵感。鹿角形状的精美吊灯,精致而独特,轻盈而梦幻。吊顶四周的射灯,起到补充照明的作用。
卧室
主卧空间相对比较宽敞,而且自带卫生间,非常方便男女主人的使用。主卧选用的是灰色靠背的布艺床,给人以沉稳且柔软的感觉。窗帘则选用大面积灰色与少量亮橙色拼色的窗帘。以适当的亮色,来提亮空间。主卧同样设计了嵌入式的落地式衣柜,以满足业主收纳衣物的需求。
餐厅
餐厅的圆环形吊灯,颇具现代艺术感,以灰色、黑色、白色,三中色彩搭配设计的餐桌餐椅,造型简洁大方。餐椅的椅背高度较低,这样可以保证空间具有良好的视觉通透感。简约的设计,也是空间看起来不会显得局促。
次卧
次卧是业主家孩子的房子,上下铺的多功能儿童床,功能更强大,也更具有趣味性,带收纳功能的台阶,可以收纳孩子的玩具、图书等。在相对较小的卧室空间内,床就可以成为孩子最好的玩具。嵌入式的落地大衣柜,可以完全满足孩子衣物的收纳需求。
卫生间
卫生间做了淋浴隔断设计。干湿分离的方式,使得卫生间使用和收拾起来增加方便。玻璃隔断半透明的花纹,既很好的保护了淋浴间的私密性,又不会使之过于压抑。黑色的浴室柜与造型精致的柜门把手,无一不给人以高贵、华丽的感觉。
