景粼原著113平米轻奢风
2019-04-10 20:09:22 查看人数 1542
案例面积:113㎡
案例户型:二居室
装修造价:约16万
案例风格:现代
轻奢主义,承载一个人独特品味,生活阅历与人生智慧的空间。而设计师量身定制的原创,是定义“轻奢”的最重要注解。每位设计师将对美学的思考、对空间的精准把握,再融入主人强烈的个人风格,呈现世上独一无二的家居主义。
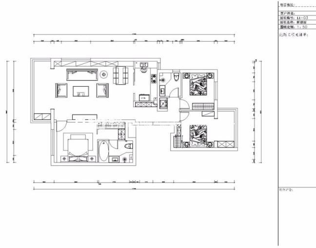
户型图
轻奢意义是不言自明的,在多元的社会交往中,没有一些画龙点睛之物压阵,的确让人有些底气不足。轻奢生活的现代意义在于可以提升品位、提升身份认同感,一个真正的都市人懂得巧用奢侈品来为自己加分。
客厅
在客厅配饰方面,设计师着重家居质感,略带时尚潮流元素及创意新颖的石材背景墙,透露出主人精致的生活品味和生活方式,正是对现代轻奢风格的最好诠释,装修现代轻奢风格,您也可以借鉴这个案例来装饰自已的房子。
卧室
卧室是主人休息的重要的空间,也是主人卸下疲劳放松身心的最佳地方,所以卧室装修的好坏,就足以证明主人对生活方式追求,上面的卧室装修格调温暖舒适,运用了硬包的布面来处理,结合的金属和玻璃的处理,更加协调与温馨。
卫生间
卫生间运用了仿大理石的卡拉拉石材的砖,大气整洁,使用功能合理规划。
